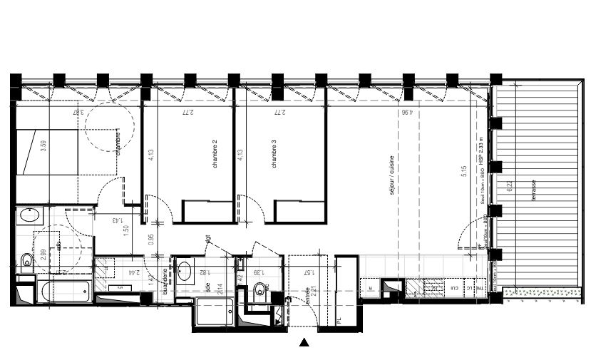
A Lyon 3ème Idéalement situé à deux pas de la Place Aristide Briand et à proximité immédiate des métros Métro Garibaldi et Métro Saxe Gambetta. Perché au 7ème étage avec ascenseur d'un immeuble de standing avec gardienne, ce bien développe 142 m² Carrez et bénéficie d'une position dominante offrant une vue entièrement dégagée. Son exposition et ses larges ouvertures lui confèrent une luminosité exceptionnelle, créant une atmosphère à la fois élégante et apaisante. Entièrement rénové en 2020 avec des matériaux de qualité, l'appartement est issu de la réunion de deux lots, permettant une organisation fluide et des volumes particulièrement généreux, parfaitement adaptés à une vie de famille. Le séjour, spacieux et baigné de lumière, constitue le coeur de l'appartement et s'ouvre naturellement sur une cuisine équipée, pensée pour allier esthétisme et fonctionnalité. L'ensemble est sublimé par un beau parquet chaleureux, apportant cachet, confort et une véritable signature contemporaine aux espaces de vie. L'espace nuit propose six chambres confortables, offrant calme et intimité dans une atmosphère douce et harmonieuse. A l'extérieur, une terrasse de 32 m² prolonge harmonieusement les espaces de vie. Véritable atout rare en milieu urbain, elle offre un cadre privilégié pour profiter pleinement d'une vue dominante et dégagée, dans un environnement paisible. Les prestations assurent un confort optimal avec une porte blindée, des fenêtres récentes, un store banne électrique ainsi que la possibilité d'installer la climatisation et des volets électriques côté cuisine. Le chauffage urbain, inclus dans les charges, garantit un confort thermique constant. Le bien est complété par deux caves, un jardin commun, un local à vélos et la présence d'une gardienne au sein de la copropriété. Les charges annuelles s'élèvent à 5 730 euros, incluant chauffage, eau chaude, eau froide et gardienne. La taxe foncière est de 2 300 euros. Ce bien rare conjugue surface, luminosité et emplacement stratégique, à proximité immédiate des commerces, transports et commodités. CLASSE ÉNERGIE : C / CLASSE CLIMAT : C Montant moyen estimé des dépenses annuelles d'énergie pour un usage standard, établi à partir des prix de l'énergie de l'année 2021 : entre 1830 euros et 3250 euros. Contact - Joris : 06 68 35 00 43 Copropriété de 92 lots - dont 92 lots habitation. Charges annuelles : 5730 euros. Joris JEHAN (EI) Agent Commercial - Numéro RSAC : 818 396 939 - Lyon.