Appartement 6 pièces de 143 m2 en vente à Lyon dans le 3ème arrondissement avec balcon et cave - Idéal investisseurs ou pour les familles
Lyon 69003
0
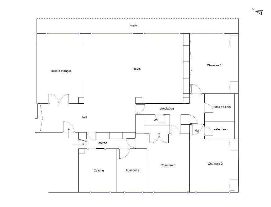
Zefir vous propose à la vente cet appartement de 6 pièces de 143 m² situé à Lyon.
L'appartement est une réunion de deux appartements, seul sur le palier du 4eme étage avec deux portes d'entrée dont une condamnée.
Ce bien est aménagé de la manière suivante :
- Un séjour de taille confortable 35m2
- Cinq chambres
- Une cuisine équipée
- Deux dressings
- Une salle de bain
- Une salle d'eau
- WC séparé
Atouts :
- Balcon pour profiter des beaux jours
- Une place de parking pour votre véhicule
- Appartement très lumineux, traversant Est/Ouest
- Deux caves pour du rangement supplémentaire
- Deux greniers
- Calme pour garantir votre confort
- Appartement rafraîchi à neuf
Le bien est vendu loué, les locataires occupent le bien jusqu'à décembre 2026 !
Les loyers sont de 2165€/mois hors charges
La rentabilité brute est de : 4,5%
Le garage est vendu en sus
Parce que la localisation ça compte aussi :
- Arrêt de métro Place Guichard Bourse du Travail à environ 200 m
- Arrêts de bus Saxe - Paul Bert et Saxe - Préfecture à moins de 200 m
- Ecole élémentaire publique Mazenod et collège Raoul Dufy à moins de 100 m
- Parc Place Guichard et Parc Charles de Gaulle à moins de 600 m
Caractéristiques techniques :
- Taxe foncière: 1769 €
- Appels de charge : 212 € par mois
- DPE : B
- Mode de chauffage : Individuel au gaz
- Distribution eau : Gaz
Les informations sur les risques auxquels ce bien est exposé sont disponibles sur le site Géorisques : (http://www.georisques.gouv.fr/)
Intéressés ? Contactez Zefir pour visiter ce bien.