À VENDRE - Appartement T4 / 3 chambres / 79 m² / standing / RDC / garage
ICONinvest Immobilier a le plaisir de vous proposer à la vente cet APPARTEMENT T4 de 79m², avec 3 chambres + 1 garage. Il est situé dans une rue calme du quartier Brasse à Belfort, au rez-de-chaussée surélevé d'une copropriété à taille humaine, standing, moderne, très agréable à vivre, propre et confortable.
Situation géographique :
À quelques centaines de mètres des moteurs économiques de la région que sont l'ALSTOM et GENERAL ELECTRIC, ARABELLE Solutions, ainsi que du TECHNOM, un parc urbain d'activités de 110 hectares, qui compte environ 7 500 salariés et 1000 étudiants. Plus de 120 entreprises industrielles et tertiaires y sont implantées.
Situé dans un quartier vivant et pratique, permettant de tout faire à pieds Vous trouverez à 1?? proximité :
- Supermarché - Épiceries, boucherie, place du Marché des Vosges - Kiosque, tabac, cafés, restauration, - Pharmacie, médecins - Crèche, école, collège, lycée - Poste - Transports en commun à quelques mètres - +++ facilité pour se garer gratuitement au pied de l'immeuble
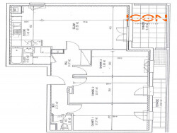
Description du bien : il se compose de : - Un couloir avec rangements intégrés - Une cuisine aménagée et équipée américaine, ouverte sur le salon, - Un salon qui permet l'accès à la terrasse - 3 chambres dont 2 avec accès balcon - Une salle de bain, baignoire, meuble vasque - WC séparés
En annexe - Un balcon de 6 m2 - Une terrasse de 9 m2 - Un garage individuel en sous-sol
Aspects techniques et financiers :
- Un bien de qualité très propre, soigné, très bon état - Chauffage et production d'eau chaude sanitaire via une chaudière gaz, individuelle - Fenêtres PVC double vitrage - ascenseur depuis sous-sol - accessibilité PMR
Veuillez s'il vous plaît contacter votre Agence ICONinvest Immobilier pour tout renseignement complémentaire, ou pour convenir d'une visite.
Honoraires à la charge du vendeur. Dans une copropriété de 10 lots. Aucune procédure n'est en cours. Classe énergie C, Classe climat C Montant estimé des dépenses annuelles d'énergie pour un usage standard : entre 1162.00 et 1572.00 sur les années 2021, 2022 et 2023 (abonnements compris). Les informations sur les risques auxquels ce bien est exposé sont disponibles sur le site Géorisques : georisques.gouv.fr.
79 m²
1 962 €
6 m²
4
3
1
1 (séparé)
1 sur 4
2007
Sud
Est
1 (6 m²)
1
1
Oui (10 lots)
Consommations énergétiques
Logement économe
144
Logement énergivore (kWhEP/m2/an)
Émissions de gaz à effet de serre
Faible émission de GES
28
Forte émission de GES(kgeqCO2/m2/an)
Contact VISTA Agence
Contacter gratuitement à l'aide du formulaire ci-dessous.