Découvrez cet appartement entièrement rénové en 2024, situé dans une résidence de charme datant de 1920. Vous profiterez d'un cadre de vie agréable, à la fois authentique et moderne, idéal pour une personne seule ou un couple.
Passée une entrée avec WC séparés, vous arrivez dans un belle pièce de vie de 28m2 profitant d'une belle hauteur sous plafond de 2m75 et de 4 fenêtres avec vue dégagée. Ensuite une chambre spacieuse de plus de 11m2 ouverte sur une salle d'eau contemporaine.
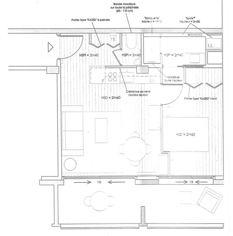
La cuisine, à aménager selon vos envies, vous permettra de créer un espace qui vous ressemble.
Le confort est au rendez-vous avec un chauffage électrique individuel neuf et programmable, fenêtres en aluminium double vitrage avec volets roulants électrique, un stationnement intérieur sécurisé pour votre véhicule (15.000 en sus du prix de vente). L'orientation Nord-Est vous garantit une belle luminosité le matin et une fraîcheur appréciable en été.
Côté praticité, l'adresse est parfaitement desservie : bus à 5 minutes à pied, commerces et services de proximité, espaces verts accessibles en quelques minutes. En 10 minutes de voiture, vous rejoignez facilement le centre de Lyon, ainsi que plusieurs collèges et hôpitaux.
Prix : 230.000 Honoraires d'agence inclus à la charge du vendeur.
Contactez-nouz dès maintenant pour organiser une visite et découvrir votre futur chez vous.
Honoraires à la charge du vendeur. Dans une copropriété de 17 lots. Aucune procédure n'est en cours. Classe énergie C, Classe climat A Montant estimé des dépenses annuelles d'énergie pour un usage standard : entre 550.00 et 550.00 sur les années 2021, 2022 et 2023 (abonnements compris). Les informations sur les risques auxquels ce bien est exposé sont disponibles sur le site Géorisques : georisques.gouv.fr.
Votre conseiller ACCANO : Sophie Liminana Agent commercial (Entreprise individuelle)
48 m²
4 792 €
2
1
1
1 (séparé)
1 sur 2
1920
Est
Nord
1
Oui (17 lots)
Consommations énergétiques
Logement économe
131
Logement énergivore (kWhEP/m2/an)
Émissions de gaz à effet de serre
Faible émission de GES
4
Forte émission de GES(kgeqCO2/m2/an)
Contact Sophie Liminana
Contacter gratuitement à l'aide du formulaire ci-dessous.