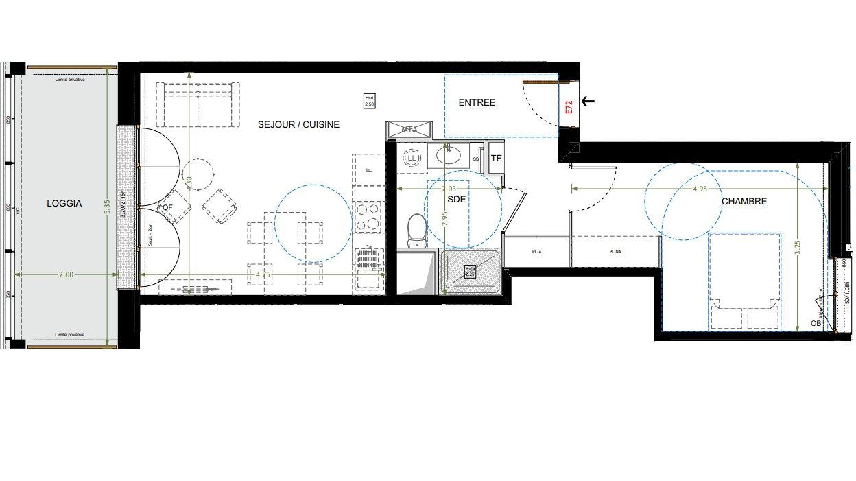
LES POINTS FORTS :RDJ/2 TERRASSES/1GARAGE/1 PLACE DE PARKING. En rez de jardin dans une copropriété familiale cet appartement est composé d'un espace cuisine équipée ouvert sur la pièce de vie plaisante par l'accès direct sur une première terrasse.1 placard de rangement pour l'entrée. Coté nuit une chambre avec rangement ,une chambre parentale donnant sur une terrasse, 1 salle de bains, 1 WC PMR.1 cellier . Pour le stationnement un garage fermé+1 place de parking. Contacté Béatrice Gerardi au 0659314287 ou b.gerardi@pietrapolis.fr
Honoraires à la charge du vendeur. Dans une copropriété de 12 lots. Procédure en cours : non. Classe énergie C, Classe climat C Montant moyen estimé des dépenses annuelles d'énergie pour un usage standard, établi à partir des prix de l'énergie de l'année 2024 : entre 650.00 et 930.00 . Les informations sur les risques auxquels ce bien est exposé sont disponibles sur le site Géorisques : georisques.gouv.fr.
70.23 m²
3 545 €
3
2
1
1 (séparé)
35.00 € / mois
2012
1
2
Oui
Oui (12 lots)
Consommations énergétiques
Logement économe
102
Logement énergivore (kWhEP/m2/an)
Émissions de gaz à effet de serre
Faible émission de GES
18
Forte émission de GES(kgeqCO2/m2/an)
Contact Béatrice GERARDI
Contacter gratuitement à l'aide du formulaire ci-dessous.