Hamza BAYOUB, de votre agence immobilière Clapiéroise DOMEA IMMOBILIER, vous invite à découvrir ce bel appartement T3 de 67,35 m², situé au premier étage sur deux d'une résidence livrée en 2025, idéalement implantée à Clapiers, dans le quartier recherché du Castelet.
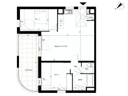
Il se compose d'une belle pièce de vie de près de 35 m² avec cuisine ouverte, ouvrant sur une agréable terrasse de 15 m², idéale pour profiter des beaux jours. L'espace nuit propose deux chambres, une salle de bain ainsi qu'un toilette séparé. Le bien dispose de deux places de stationnement en sous-sol, un atout appréciable au quotidien.
La résidence, très récente, offre de belles prestations telles qu'un local vélo, un système d'accès sécurisé Intratone et des volets roulants. Conforme aux normes PMR.
Vous bénéficierez également de la proximité de la ligne 5 du tramway, facilitant vos déplacements vers Montpellier et ses environs.
Honoraires à la charge du vendeur. Dans une copropriété de 35 lots. Aucune procédure n'est en cours. Classe énergie A, Classe climat A Montant estimé des dépenses annuelles d'énergie pour un usage standard : entre 400.00 et 800.00 sur les années 2021, 2022 et 2023 (abonnements compris). Les informations sur les risques auxquels ce bien est exposé sont disponibles sur le site Géorisques : georisques.gouv.fr.