Honoraires à la charge de l'acquéreur (Prix hors honoraires : 339000 euros).
Exclusivité Villa T4 : Thibault : O6.14.25.12.25
Découvrez cette agréable villa individuelle T4, idéalement située dans un environnement pratique et recherché. À proximité immédiate des commodités (supermarchés, écoles), vous rejoindrez la gare de Baillargues en seulement 5 minutes en voiture, les axes autoroutiers, ainsi que l'aéroport et les principaux centres commerciaux en une vingtaine de minutes.
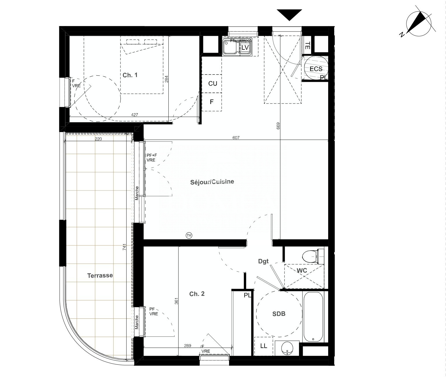
Au rez-de-chaussée, vous serez séduit par un vaste séjour lumineux avec cuisine ouverte, offrant un bel espace de vie convivial, prolongé par une terrasse de 20 m² exposée Sud-Ouest sans aucun vis-à-vis et au calme, idéale pour profiter des beaux jours. Un WC indépendant complète ce niveau.
À l'étage, l'espace nuit se compose de trois chambres confortables, d'une salle d'eau et d'un second WC.
Deux places de stationnement viennent parfaire ce bien.
« Les informations sur les risques auxquels ce bien est exposé sont disponibles sur le site Géorisques : www.georisques.gouv.fr ».
Prix : 339 000 FAI (honoraires à la charge vendeur). La Franchise Immobilière St Aunes X Weinvest
Classe énergie B, Classe climat B Montant moyen estimé des dépenses annuelles d'énergie pour un usage standard, établi à partir des prix de l'énergie de l'année 2025 : entre 500.00 et 1500.00 . Les informations sur les risques auxquels ce bien est exposé sont disponibles sur le site Géorisques : georisques.gouv.fr.
Votre conseiller La-Franchise-Immo Saint-Aunès : Thibault Calatayud Agent commercial (Entreprise individuelle). Les informations sur les risques auxquels ce bien est exposé sont disponibles sur le site Géorisques : www.georisques.gouv.fr
72 m²
4 708 €
4
3
1
2 (séparés)
2018
Sud
Ouest
2
Consommations énergétiques
Logement économe
30
Logement énergivore (kWhEP/m2/an)
Émissions de gaz à effet de serre
Faible émission de GES
10
Forte émission de GES(kgeqCO2/m2/an)
Contact LA FRANCHISE IMMOBILIERE
Contacter gratuitement à l'aide du formulaire ci-dessous.