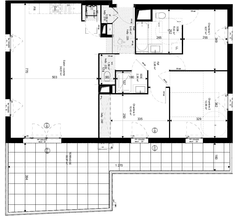
Au 2ème et dernier étage d'une résidence récente située au centre de Collonges-au-Mont-d'Or, découvrez cet appartement T4 de 89,47 m². Son emplacement central vous offre un accès immédiat aux commerces de qualité et à l'ambiance village de Collonges.
Passée une entrée, vous arrivez dans une pièce de vie spacieuse de 39,50 m², baignée de lumière grâce à de nombreuses grandes ouvertures, avec une vue apaisante sur les arbres environnants. Possibilité de créer une cuisine séparée selon vos besoins, ou de profiter d'un espace ouvert convivial. Un coin bureau est idéal pour le télétravail.
L'espace nuit est réparti en 3 chambres avec placards en parquet massif, offrant chacune une belle vue dégagée. Une salle de bains familiale confortable, une buanderie et un WC indépendant.
Une terrasse de 9 m², parfait pour profiter de moments de détente en plein air. Un garage fermé et une place de stationnement de stationnement en sous-sol (en sus du prix de vente) et ascenseur pour un accès facile et sécurisé. Parties communes soignées et environnement agréable.
La résidence est idéalement située à deux pas des commerces, des écoles et des services essentiels. Les amateurs de nature apprécieront la tranquillité du quartier et la proximité immédiate d'espaces verts.
Prix : 444.000 Honoraires d'agence compris, charge vendeur
Estimation charges de copropriété : 110 / mois
Ne passez pas à côté de cette belle opportunité. Contactez-nous dès aujourd'hui Sophie Liminana pour organiser une visite et découvrir ce lieu de vie exceptionnel !
Honoraires à la charge du vendeur. Dans une copropriété de 34 lots. Aucune procédure n'est en cours. Classe énergie C, Classe climat C Montant estimé des dépenses annuelles d'énergie pour un usage standard : entre 519.00 et 703.00 sur les années 2021, 2022 et 2023 (abonnements compris). Les informations sur les risques auxquels ce bien est exposé sont disponibles sur le site Géorisques : georisques.gouv.fr.
Votre conseiller ACCANO : Sophie Liminana Agent commercial (Entreprise individuelle)
89.47 m²
4 963 €
9 m²
4
3
1
1 (séparé)
2 sur 2
140.00 € / mois
2024
1 (9 m²)
Oui
1
Oui (34 lots)
Consommations énergétiques
Logement économe
65
Logement énergivore (kWhEP/m2/an)
Émissions de gaz à effet de serre
Faible émission de GES
13
Forte émission de GES(kgeqCO2/m2/an)
Contact Sophie Liminana
Contacter gratuitement à l'aide du formulaire ci-dessous.