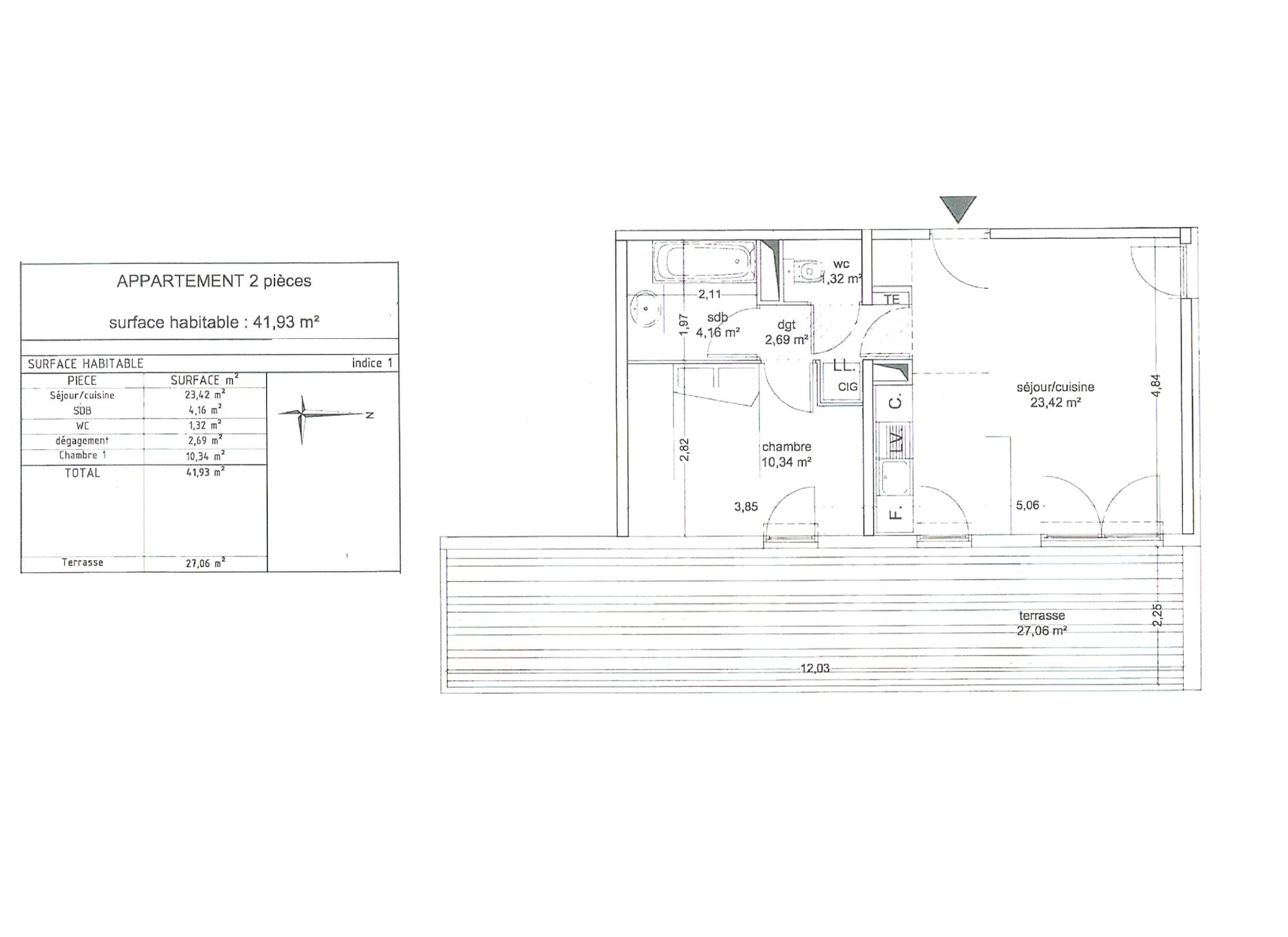
Proche du centre ville de Cornebarrieu dans une résidence récente et sécurisée, venez découvrir un magnifique T2 de 45 m² en rez-de-chaussée avec une belle terrasse en bois de 18m².
Ce dernier comprend : une cuisine entièrement équipée et meublée (meubles hauts et bas, plaques vitrocéramiques, hotte et réfrigérateur emplacement pour un lave-vaisselle, emplacement pour micro-ondes ainsi que pour un four encastrable) ouverte sur le séjour. La pièce de vie, lumineuse et facile à agencer donne sur une très belle terrasse en bois de 18m².
Une chambre avec ensemble penderie/étagère donnant accès à la terrasse.. Une salle de bains agrémentée de meuble sous vasque, miroir lumineux, machine à laver, sèche serviette, baignoire.
Une place de parking en sous-sol, sécurisée par un portail électrique.
Charges de copropriétés : 871 / an Taxe foncière : 791 Mode de production de chauffage : Gaz individuel à condensation Le prix de vente de cet appartement T2 est de 1309000 FAI, dont 10 000 d'honoraires à charge vendeur soit 129 000 nets vendeur.
Ce logement de haut standing est équipé d'une alarme anti-intrusion, d'un visiophone ainsi que d'un thermostat.
A Proximité :
- À 15 min à pied de l'arrêt de bus «Saint-Jean» de la ligne 17. - À 1 km de l'arrêt de bus «Fours» du TAD (Transport à la Demande). - Accès à l'A621 (périphérique ouest) et la voie lactée (accès Toulouse/Blagnac) via la route de Toulouse/D1 en seulement 5 min. - À 6 km du site Louis Bréguet d'Airbus (A350).
Honoraires à la charge du vendeur. Dans une copropriété de 105 lots. Aucune procédure n'est en cours. Classe énergie B, Classe climat A Montant estimé des dépenses annuelles d'énergie pour un usage standard : entre 400.00 et 600.00 sur les années 2021, 2022 et 2023 (abonnements compris). Les informations sur les risques auxquels ce bien est exposé sont disponibles sur le site Géorisques : georisques.gouv.fr.
45 m²
3 089 €
2
1
Oui (105 lots)
Consommations énergétiques
Logement économe
82
Logement énergivore (kWhEP/m2/an)
Émissions de gaz à effet de serre
Faible émission de GES
5
Forte émission de GES(kgeqCO2/m2/an)
Contact AUDITIA GESTION TOULOUSE
Contacter gratuitement à l'aide du formulaire ci-dessous.