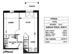
Forom Immobilier vous propose cet appartement T2 d'une surface d'environ 42m² au rez-de-chaussée situé dans une résidence récente et sécurisée sur la commune de Douai.
Le logement dispose d'un séjour, une cuisine, une chambre, une salle de bains, un WC, une terrasse et une place de parking.
Loyer mensuel : 516 / mois soit 481 HC + 35 CL Rentabilité : 7,51% brute Charges de copropriété : 85 / mois Taxe foncière 2025 : 932 / an (dont 223 de TEOM remboursée par le locataire) Date de fin de bail : 19/11/2026 DPE : C Nombre de lots : 69 Honoraires charge vendeur
Honoraires à la charge du vendeur. Dans une copropriété de 69 lots. Aucune procédure n'est en cours. Classe énergie C, Classe climat C Montant estimé des dépenses annuelles d'énergie pour un usage standard : entre 1.00 et 1.00 sur les années 2021, 2022 et 2023 (abonnements compris). Les informations sur les risques auxquels ce bien est exposé sont disponibles sur le site Géorisques : georisques.gouv.fr.
42.04 m²
1 962 €
2
1
1
1
85.38 € / mois
1
Oui (69 lots)
Consommations énergétiques
Logement économe
94
Logement énergivore (kWhEP/m2/an)
Émissions de gaz à effet de serre
Faible émission de GES
22
Forte émission de GES(kgeqCO2/m2/an)
Contact Forom® Immobilier
Contacter gratuitement à l'aide du formulaire ci-dessous.