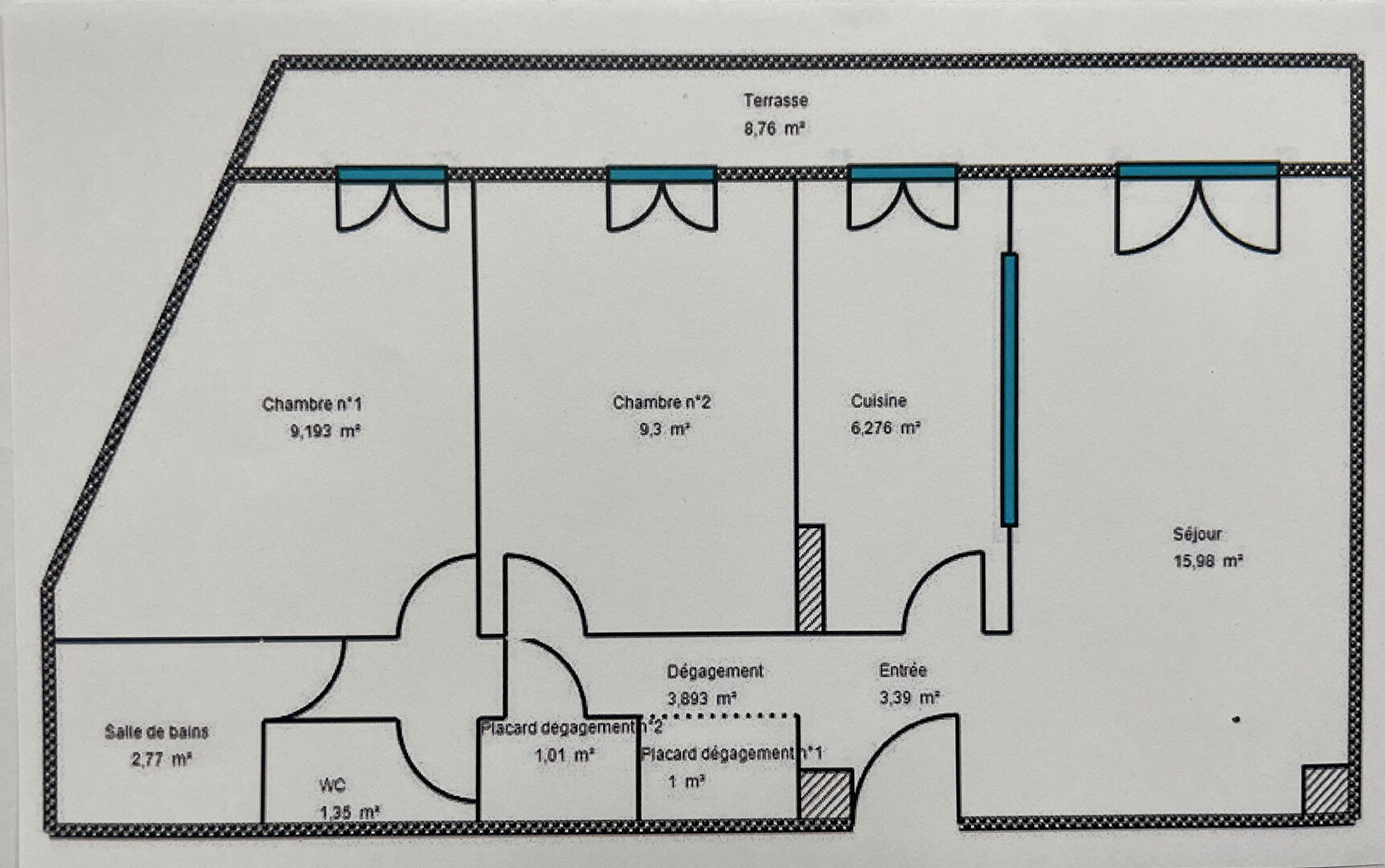
Découvrez ce magnifique appartement T2/3 de 40 m² habitables, situé au 1er étage d'un immeuble de standing construit en 2018. Cet appartement neuf, en excellent état, allie modernité et confort pour une vie quotidienne agréable et sereine. Avec ses 2 chambres spacieuses, son séjour de 22 m² baigné de lumière, et sa cuisine américaine aménagée et équipée, cet appartement est idéal pour les couples ou les petites familles. La salle de bains moderne et les WC séparés ajoutent au confort de vie. Profitez d'un balcon de 12 m² offrant une vue imprenable sur la campagne, parfait pour des moments de détente en plein air. L'appartement est conforme aux normes PMR, garantissant accessibilité et sécurité pour tous. Les parties communes de l'immeuble sont en excellent état, et un ascenseur est à votre disposition pour un accès facile à votre logement. Un stationnement intérieur est également inclus pour votre véhicule. Situé à proximité de toutes les commodités, vous trouverez un bus à 5 min à pied, un tramway à 10 min en voiture, une crèche et une alimentation générale à 5 min à pied, ainsi que plusieurs restaurants à proximité. Des écoles maternelles et élémentaires sont accessibles à 15 min à pied, et plusieurs collèges se trouvent à 10 min en voiture. Un parc et jardin est à 5 min en voiture, ainsi que plusieurs hôpitaux et médecins généralistes à 5 min à pied ou 10 min en voiture. L'appartement est éligible au haut débit et à la fibre pour une connexion internet optimale. Ne manquez pas cette opportunité de vivre dans un appartement de standing, alliant confort, modernité et emplacement privilégié. Contactez-nous dès maintenant pour une visite!
Honoraires à la charge du vendeur. Dans une copropriété de 60 lots. Quote-part moyenne du budget prévisionnel 1 200 /an. Aucune procédure n'est en cours. Classe énergie B, Classe climat A Montant estimé des dépenses annuelles d'énergie pour un usage standard : entre 438.00 et 594.00 sur les années 2021, 2022 et 2023 (abonnements compris). Les informations sur les risques auxquels ce bien est exposé sont disponibles sur le site Géorisques : georisques.gouv.fr.
Votre conseiller eXp Realty : Richard YILMAZ Agent commercial (Entreprise individuelle) RSAC EI RSAC 822814554 NICE
40 m²
5 925 €
12 m²
22 m²
3
2
1
1
1 sur 4
98.00 € / mois
2018
1 (12 m²)
Oui
1
Oui
Oui (60 lots)
Consommations énergétiques
Logement économe
108
Logement énergivore (kWhEP/m2/an)
Émissions de gaz à effet de serre
Faible émission de GES
3
Forte émission de GES(kgeqCO2/m2/an)
Contact Iad France - Richard YILMAZ
Contacter gratuitement à l'aide du formulaire ci-dessous.