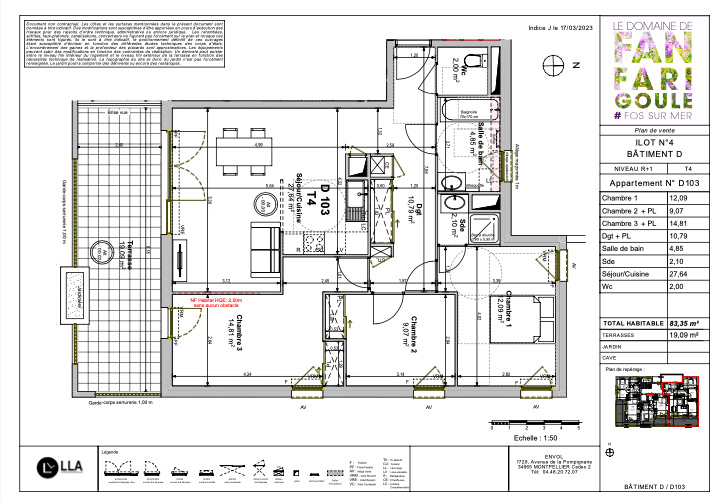
NOUVEAU FOS SUR MER, PROGRAMME NEUF PORTANT LE LOT N°6, DANS UNE RÉSIDENCE FERMÉE ET SÉCURISÉE, L'agence Margueron Immobilier vous présente à la vente un appartement en duplex type 4 de 86.34 m² habitables avec terrasse de 14.36 m². Il se compose d'une entrée, un séjour/cuisine, trois chambres dont une avec dressing, une salle de bains, wc indépendant, un cellier, une buanderie, un dégagement et une terrasse de 14.36 m². DEMARRAGE DES TRAVAUX FIN 2025. Pour plus de renseignements contactez Sébastien au 06.19.81.55.20. Honoraires charge vendeur.
Honoraires à la charge du vendeur. Dans une copropriété de 10 lots. Aucune procédure n'est en cours. DPE en cours. Les informations sur les risques auxquels ce bien est exposé sont disponibles sur le site Géorisques : georisques.gouv.fr.
Votre conseiller Margueron Immobilier : Sébastien Massot Agent commercial (Entreprise individuelle) RSAC 907874317. MARGUERON IMMOBILIER, Par des investisseurs, Pour des investisseurs 20 rue léonard combes 13500 Martigues
86.34 m²
3 821 €
4
3
1
1 (séparé)
2025
Sud
Nord
1
1
Oui (10 lots)
Contact Sébastien Massot
Contacter gratuitement à l'aide du formulaire ci-dessous.