Fos-sur-Mer T4 avec terrasse de 19 m2 et deux parkings
Fos-sur-Mer 13270
0
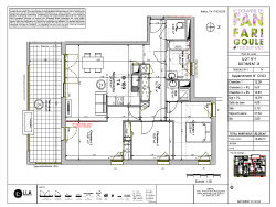
B&R IMMO a le plaisir de vous proposons à la vente un appartement de type 4 situé au premier étage d'une résidence à Fos-sur-Mer, offrant des prestations soignées et un cadre de vie agréable. D'une configuration fonctionnelle et bien pensée, ce bien dispose d'un vaste séjour de 27 m2, lumineux grâce à de larges ouvertures, avec un accès direct à une terrasse de 19 m2, véritable prolongement de l'espace de vie. Cet extérieur généreux permet d'envisager un espace repas, un coin détente ou un aménagement paysager selon vos envies. La partie nuit se compose de trois chambres, dont une suite parentale de 14 m2, conçue pour offrir indépendance et confort. Les deux autres chambres permettent d'accueillir enfants, invités ou de créer un bureau selon les besoins. La distribution des pièces a été étudiée pour optimiser les volumes et préserver l'intimité de chacun. Deux places de stationnement privatives sont incluses avec l'appartement, apportant un confort supplémentaire au quotidien. La résidence est conforme aux dernières normes de construction (RT 2012 ou équivalent), garantissant une performance énergétique optimale, une bonne isolation phonique et des charges maîtrisées. Son emplacement offre un accès rapide aux commodités, aux écoles et aux axes principaux. Ce bien s'adresse aussi bien à des occupants en résidence principale qu'à des investisseurs à la recherche d'un placement de qualité dans un secteur dynamique. Pour plus d'informations ou pour organiser une visite, n'hésitez pas à nous contacter.
83.35 m²
3 358 €
27 m²
4
3
1
Oui
2
Oui
1
Oui
Contact COGGIOLA Nathan
Contacter gratuitement à l'aide du formulaire ci-dessous.