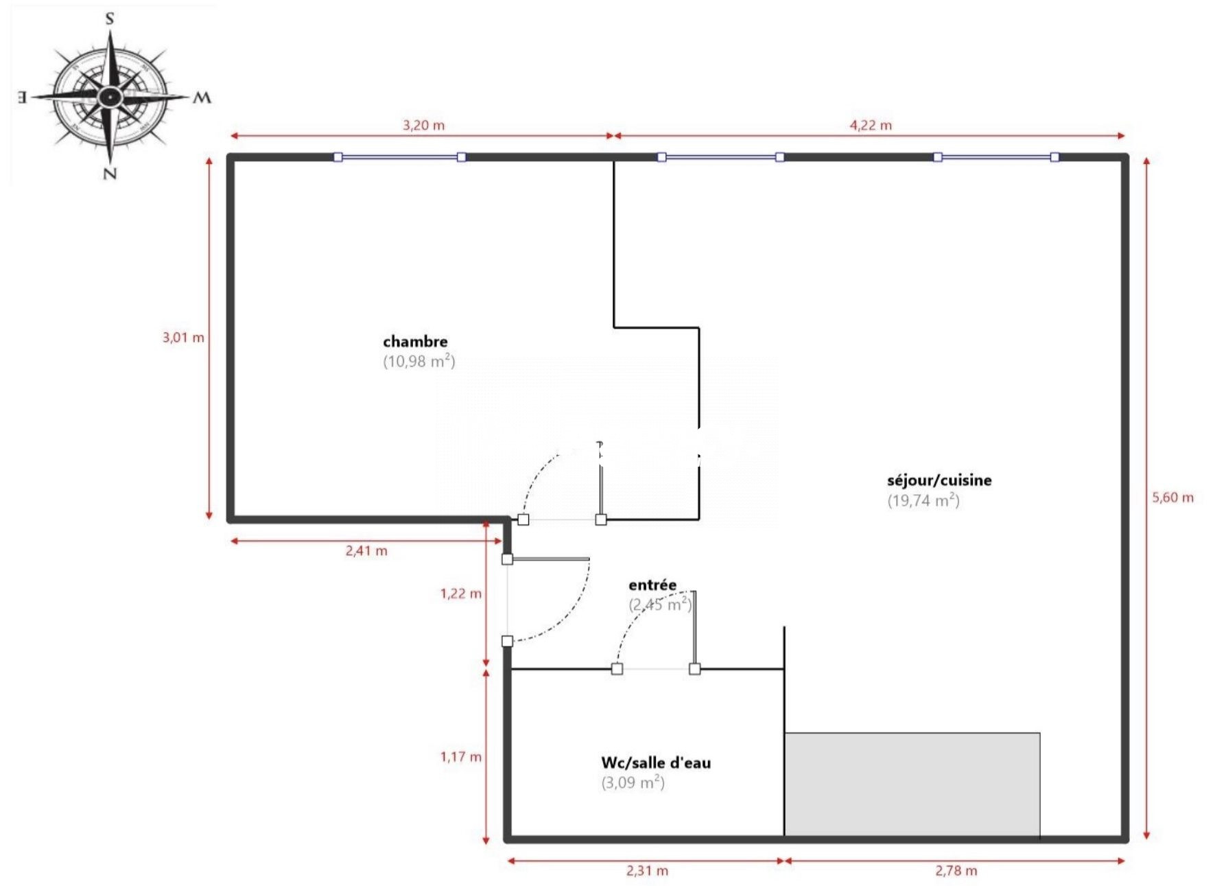
EN VENTE - LA ROQUE D'ANTHERON - RESIDENCE SECURISEE - Appartement de type 2 avec garage et balcon situé au 1er étage de cette résidence sécurisée. Cet appartement, actuellement loué, représente un bon produit d'investissement. Bail allant jusqu'au 30/06/2027 pour un loyer de 662.20eur/mois. Il se compose d'une entrée, d'un séjour avec coin cuisine, d'une chambre avec placard de plus de 13m², d'une salle d'eau et d'un wc indépendant. Ce bien vous est présenté par Florian RUCART, agence MON PROJET IMMO, ref 209
Honoraires à la charge du vendeur. Dans une copropriété de 310 lots. Aucune procédure n'est en cours. Classe énergie C, Classe climat A. Les informations sur les risques auxquels ce bien est exposé sont disponibles sur le site Géorisques : georisques.gouv.fr.
44.5 m²
2 921 €
2
1
1
1
1
80.00 € / mois
2005
1
Oui
Oui (310 lots)
Consommations énergétiques
Logement économe
147
Logement énergivore (kWhEP/m2/an)
Émissions de gaz à effet de serre
Faible émission de GES
5
Forte émission de GES(kgeqCO2/m2/an)
Contact Florian RUCART
Contacter gratuitement à l'aide du formulaire ci-dessous.