MIREVAL : Cet appartement vous est présenté par Rebecca : O6 95 17 29 8O.
Situé dans un secteur calme et résidentiel, à proximité du centre-ville et 500 mètres de l'étang de Vic, cet appartement T3 en Rez-de-jardin avec son extérieur de 28 m² vous séduira par son cadre naturel, sa proximité avec la mer et son accessibilité.
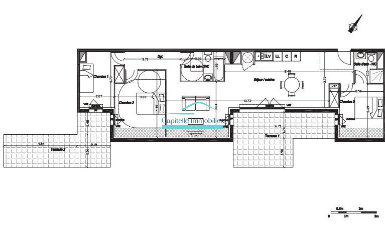
Au sein d'une résidence récente répondant aux dernières normes environnementales, il propose une pièce de vie spacieuse de près de 30 m², exposée Sud-Est. Vous y trouverez également deux chambres, un dégagement, une salle d'eau, ainsi qu'un WC indépendant et 2 places de stationnement privatives.
Le quotidien y est facilité : crèche, écoles, commerces de proximité (boucherie, boulangerie, supérette, fleuriste, pressing, coiffeur, librairie, institut de beauté, garages...),
La scolarité est assurée de la crèche à l'école primaire sur place, et vous trouverez collèges et lycées dans un rayon de 9 km. Côté transports de nombreuses lignes de bus, l'accessibilité est idéale : bus ligne 102 direction Montpellier (station Sabines en 15 min), ligne 17 vers Mireval et Frontignan, et ligne 12 vers Sète et sa gare SNCF.
Mireval offre aussi une vraie vie de village avec deux marchés de plein vent chaque semaine (mardi et vendredi matin sur la place Louis Aragon), dans une région viticole reconnue notamment pour son muscat AOC.
La gare de Vic-Mireval est située à 650 m, desservant Montpellier Saint-Roch, Sète, Narbonne, Nîmes ou Avignon. Accès rapide à l'autoroute A9, Montpellier à 26 min, Sète à 19 min, gare TGV de Sète à 20 min, Montpellier Saint-Roch à 25 min, aéroport Montpellier Méditerranée à 24 min.
Une belle opportunité pour les familles ou les couples, alliant confort, praticité et qualité de vie.
À visiter sans tarder ! Prix : 28O OOO FAI (honoraires à charge vendeur). Bien soumis au statut juridique de la copropriété (40 lots principaux). DPE : A / GES : A LA FRANCHISE IMMOBILIÈRE Saint-Jean-de-Védas O6 95 17 29 8O
Les informations sur les risques auxquels ce bien est exposé sont disponibles sur le site : www.georisques.gouv.fr Ce bien vous est présenté par Rebecca Exile : O6.95.17.29.8O. RSAC 920 385 101
Honoraires à la charge du vendeur. Dans une copropriété de 40 lots. Aucune procédure n'est en cours. Classe énergie A, Classe climat A Montant estimé des dépenses annuelles d'énergie pour un usage standard : entre 400.00 et 600.00 sur les années 2021, 2022 et 2023 (abonnements compris). Les informations sur les risques auxquels ce bien est exposé sont disponibles sur le site Géorisques : georisques.gouv.fr.