Mireval appartement T3 avec terrasse jardin et parking
Mireval 34110
0
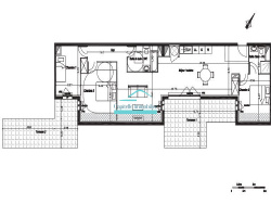
Capitelle Immobilier vous propose à Mireval cet appartement T3 de 63m2 plein sud comprenant un espace de vie de 27,30 m2 avec cuisine, 2 chambres , 1 salle de bain, un toilette. Un petit jardin et 2 places de parking complèteront ce bien. Proche du centre-ville, à deux pas des étangs de Vic-la -Gardiole et de la plage des Aresquiers, Mireval village idéalement situé entre Sète et Montpellier. Venez nous rencontrer sur place dans notre agence au 21 Bis boulevard Pasteur nous vous ferons découvrir ce bien ainsi que notre magnifique village. Prix : 289 000EUR les honnoraires d'agence sont à la charge du vendeur .Votre Agence Capitelle Immobilier coté gardiole 04.34.53.51.68
60 m²
4 817 €
27 m²
3
2
1
1
2025
Sud
1
Contact CAPITELLE MIREVAL
Contacter gratuitement à l'aide du formulaire ci-dessous.