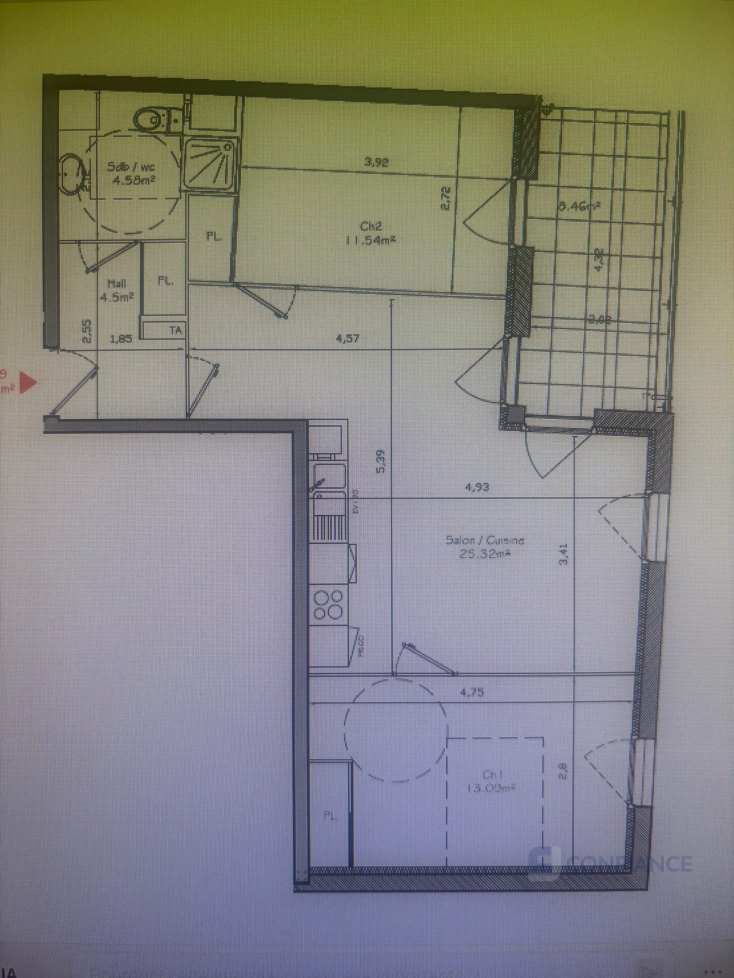
Rare. Au 2 Place Alphonse Planel, dans résidence de qualité 2010. au 4ème étage et dernier étage avec ascenseur, exceptionnel type 2 de 44 m² donnant sur 18m² de terrasse au calme et ensoleillé,
Espace de vie 25m² et chambre de 13m² donnant sur l'extérieur, et grande salle de bains équipée avec WC.
Vendu libre de toute occupation. Le prix de ce confort est 140 000 uros avec une place de parking privative en sous-sol, honoraires inclus charge vendeur. Charges annuelles 1940 uros soit 162 uros mensuel. Bien soumis au régime de la copropriété 58 lots. Pas de procédure en cours. DPE C(133kwh/m2/an) et gaz effet de serre C(25kg co2/m2/an). Confiance Immobiler vous accompagne dans tous vos projets (estimation, vente, défiscalisation immobilière). Dossier suivi par Karl GUDELEKIAN agissant sous statut d'agent commercial,ADC69012023000000123 barème d'honoraires (se reporter au site de confiance immobilier). Agence Transaction 04.37.43.41.31
Honoraires à la charge du vendeur. Dans une copropriété de 58 lots. Quote-part moyenne du budget prévisionnel 1 940 /an. Aucune procédure n'est en cours. Classe énergie C, Classe climat C Montant estimé des dépenses annuelles d'énergie pour un usage standard : entre 440.00 et 650.00 sur les années 2021, 2022 et 2023 (abonnements compris). Les informations sur les risques auxquels ce bien est exposé sont disponibles sur le site Géorisques : georisques.gouv.fr.