Dans une résidence calme, sécurisée et bien entretenue, cet appartement offre un beau potentiel après quelques travaux de rafraîchissement de la salle de bains.
Entrée sécurisée à clé et digicode. Double porte d'entrée sur le palier, ce qui vous permet de bénéficier d'un petit espace privatif supplémentaire..
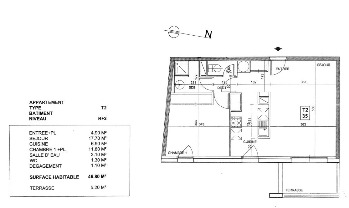
Il est composé ainsi : Une entrée avec rangements Un séjour lumineux Une cuisine Deux chambres Une salle de bains à rénover Cave en sous-sol Idéal pour premier achat ou investissement locatif, ce bien bénéficie d'un emplacement recherché, à proximité des commerces, écoles et 50 m des transports gratuits.
Atouts : résidence calme, bonne distribution des pièces, cave, potentiel d'amélioration. Il est actuellement loué 460/mois, en bail 3/6/9 - Eau et électricité individuels.
Possibilité d'effectuer des travaux de rafraîchissement et réévaluer le montant du loyer. Suite à la division de l'immeuble, de nouveaux diagnostics et un règlement de copropriété sont en cours
Contactez-nous pour plus d'informations ou pour organiser une visite.
Honoraires à la charge du vendeur. Dans une copropriété de 5 lots. Aucune procédure n'est en cours. Classe énergie D, Classe climat C. Les informations sur les risques auxquels ce bien est exposé sont disponibles sur le site Géorisques : georisques.gouv.fr.
Votre conseiller Transaxia immo : Marie Alexandre Agent commercial (Entreprise individuelle). Nous rémunérons les apporteurs d'affaires, vous nous aidez nous vous récompensons !
58 m²
2 052 €
3
2
1
1 (séparé)
1 sur 3
1
Oui
Oui (5 lots)
Consommations énergétiques
Logement économe
215
Logement énergivore (kWhEP/m2/an)
Émissions de gaz à effet de serre
Faible émission de GES
15
Forte émission de GES(kgeqCO2/m2/an)
Contact Marie Alexandre
Contacter gratuitement à l'aide du formulaire ci-dessous.