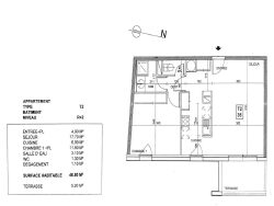
Forom Immobilier vous propose cet appartement T2 d'une surface d'environ 46,80 m² au 2ème étage situé dans une résidence récente et sécurisée sur la commune de Niort.
Le logement dispose d'un séjour, une cuisine équipée, une chambre avec placard, une salle d'eau, un WC séparé, un balcon et un box en sous-sol.
Charges de copropriété : 81,53 / mois Eau chaude et chauffage individuels électrique Taxe foncière : 839 / an DPE : C Nombre de lots : 81 Honoraires charge vendeur
Honoraires à la charge du vendeur. Dans une copropriété de 81 lots. Aucune procédure n'est en cours. Classe énergie D, Classe climat B Montant estimé des dépenses annuelles d'énergie pour un usage standard : entre 1.00 et 1.00 sur les années 2021, 2022 et 2023 (abonnements compris). Les informations sur les risques auxquels ce bien est exposé sont disponibles sur le site Géorisques : georisques.gouv.fr.
46.8 m²
2 553 €
2
1
1
1 (séparé)
2 sur 4
2008
Oui (81 lots)
Consommations énergétiques
Logement économe
210
Logement énergivore (kWhEP/m2/an)
Émissions de gaz à effet de serre
Faible émission de GES
10
Forte émission de GES(kgeqCO2/m2/an)
Contact Forom® Immobilier
Contacter gratuitement à l'aide du formulaire ci-dessous.