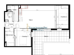
L'étude immobilière saint Paul a le plaisir de vous proposer à 7 minutes de Béziers sur la commune dynamique de SAUVIAN proche de la mer et de l'accès à l'A9 , dans un espace arboré une nouvelle opportunité d'achat en résidence principale/secondaire ou en investissement locatif. Une résidence neuve dotée des critères incombant aux nouvelles normes énergétiques. Quelques derniers T3 de standing disponibles de 60 à 73m2 en R+1 et R+3 . Les cuisines sont aménagées et équipées LES ATOUTS: Climatisation, domotique, luminosité, espaces fonctionnels, chambres avec placard, stationnement couvert PLUS GARAGE, résidence sécurisée et ascenseur TRES GRANDE TERRASSE.
Son Prix : A PARTIR de 275000 euros Frais d 'agence compris. FRAIS DE NOTAIRE OFFERTS Prenez vite RDV pour plus de renseignements et visite auprès de SARAH COTTIN au 0660783476 Consultante Immobilière, Inscrite au RSAC BEZIERS 904478542
Honoraires à la charge du vendeur. Non soumis au DPE. Les informations sur les risques auxquels ce bien est exposé sont disponibles sur le site Géorisques : georisques.gouv.fr.
Votre conseiller ETUDE IMMOBILIERE SAINT PAUL : Sarah COTTIN Agent commercial (Entreprise individuelle) RSAC 904478542 RCP 127 100 479. Etude Immobilière Saint-Paul Acheter ou Vendez en conscience !
72.3 m²
3 871 €
3
2
1
1
3 sur 3
100.00 € / mois
2025
Sud
Oui
2
1
Contact Sarah COTTIN
Contacter gratuitement à l'aide du formulaire ci-dessous.