FRAIS DE NOTAIRE OFFERTS T3 NEUF à SAUVIAN DANS PARC arboré
Sauvian 34410
0
Honoraires à la charge de l'acquéreur (Prix hors honoraires : 264400 euros).
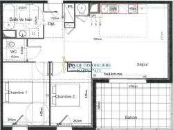
L'étude immobilière saint Paul a le plaisir de vous proposer à 7 minutes de Béziers sur la commune dynamique de SAUVIAN proche de la mer et de l'accès à l'A9 , dans un espace arboré une nouvelle opportunité d'achat en résidence principale/secondaire ou en investissement locatif. Une résidence neuve dotée des critères incombant aux nouvelles normes énergétiques. Quelques derniers T3 de standing disponible de 60 à 73m2 à chaque étage . Les cuisines sont aménagées et équipées LES ATOUTS: Climatisation, domotique, luminosité, espaces fonctionnels, chambres avec placard, stationnement couvert PLUS GARAGE, résidence sécurisée et ascenseur GRANDE TERRASSE.
Son Prix : A PARTIR de 275000 euros Frais d 'agence compris. FRAIS DE NOTAIRE OFFERTS Prenez vite RDV pour plus de renseignements et visite auprès de SARAH COTTIN au 0660783476 Consultante Immobilière, Inscrite au RSAC BEZIERS 904478542
Honoraires inclus de 4.01% TTC à la charge de l'acquéreur. Prix hors honoraires 264 400 . Dans une copropriété de 31 lots. Aucune procédure n'est en cours. Non soumis au DPE. Les informations sur les risques auxquels ce bien est exposé sont disponibles sur le site Géorisques : georisques.gouv.fr.
Votre conseiller ETUDE IMMOBILIERE SAINT PAUL : Sarah COTTIN Agent commercial (Entreprise individuelle) RSAC 904478542 RCP 127 100 479. Etude Immobilière Saint-Paul Acheter ou Vendez en conscience !
70 m²
3 929 €
32 m²
3
2
1
1
1 sur 3
4.01 %
100.00 € / mois
2025
Sud
Oui
1
1
Oui
Oui (31 lots)
Contact Sarah COTTIN
Contacter gratuitement à l'aide du formulaire ci-dessous.