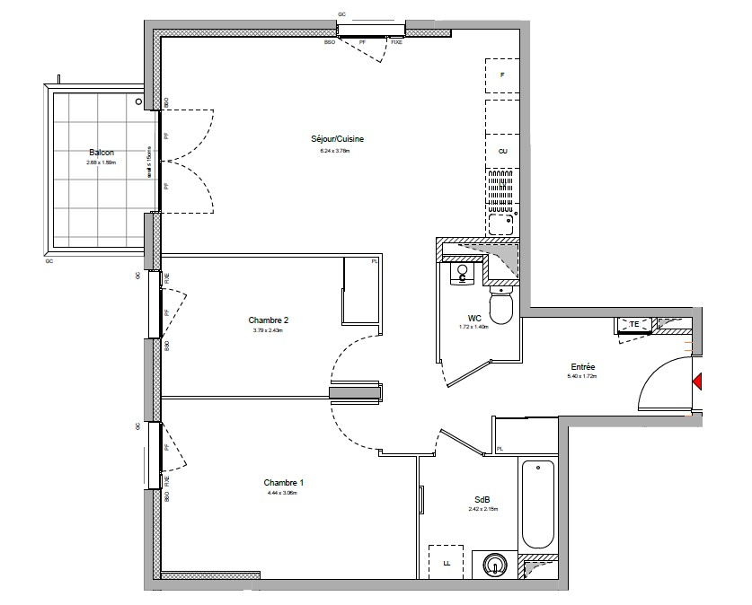
A vendre exclusivité DECULTIEUX Immobilier E,n 6ème et dernier étage, ce bel appartement familial est particulièrement lumineux, de Type 5 transformé en Type 4 d'une surface de 94,88m2 traversant avec 4 orientations, environnement calme et de proximité. Une situation géographique privilégiée : au coeur des Gratte-Ciel, quartier très convoité pour sa vie commerçante, son marché, ses écoles, son métro, Il profite d'un séjour double de plus de 33m2 avec accès sur sa loggia de 4 m², une cuisine équipée et fermée équipée qu'il est possible d'ouvrir. Ses chambres spacieuses, au nombre de trois (quatrième possible), se répartissent entre la salle de bains originale et une salle d'eau (possible). Complete ce bien, un local à vélo ; La location d'un parking proche en sous-sol (droit d'accès prioritaire sur 60 ans sans loyer avec règlement des charges) Chauffage urbain Notre reportage photos dans son intégralité sur www.decultieux-immobilier.com - visite virtuelle sur demande A votre service pour connaître la valeur de votre bien, Decultieux immobilier, la référence pour votre projet immobilier sur la métropole Lyonnaise depuis 1962 - Adhérent FNAIM - Membre Property Partner International - tél 04 78 54 87 86
Honoraires à la charge du vendeur. Dans une copropriété de 31 lots. Quote-part moyenne du budget prévisionnel 1 070 /an. Aucune procédure n'est en cours. Classe énergie D, Classe climat C Montant estimé des dépenses annuelles d'énergie pour un usage standard : entre 1380.00 et 1920.00 sur les années 2021, 2022 et 2023 (abonnements compris). Les informations sur les risques auxquels ce bien est exposé sont disponibles sur le site Géorisques : georisques.gouv.fr.
Votre conseiller DECULTIEUX IMMOBILIER : Guillaume BIETRIX Agent commercial (Entreprise individuelle) RSAC 962504296 RCP CPI69012018000027937. Decultieux immobilier, la référence pour votre projet immobilier sur la métropole Lyonnaise depuis 1962 - Adhérent FNAIM - Membre actif du réseau international PROPERTY PARTNER - tél : 04 78 54 87 86
94.88 m²
3 626 €
4 m²
33 m²
4
3
1
1
1 (séparé)
6 sur 6
01/06/2025
212.00 € / mois
1985
1 (4 m²)
Oui
Oui (31 lots)
Consommations énergétiques
Logement économe
188
Logement énergivore (kWhEP/m2/an)
Émissions de gaz à effet de serre
Faible émission de GES
15
Forte émission de GES(kgeqCO2/m2/an)
Contact GUILLAUME BIETRIX
Contacter gratuitement à l'aide du formulaire ci-dessous.