Appartement avec balcon de 70 M2 type 3/4 Le MANS St LAZARE
Le Mans 72000
0
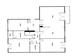
Au MANS, Quartier St LAZARD appartement de 70 M2 au 4 ème et dernier étage sans ascenseur, dans une résidence calme et sans vis à vis.Iil se compose d'une entrée , un salon et séjour avec un balcon, une cuisine aménagée, de 2 chambres, d'une loggia avec raccordement de la machine à laver, d'une salle de douche et un WC séparé. ( possibilté de faire une 3 ème chambre) le stationnement est commun. l'appartement dispose également d'une cave privée. SAS REVO IMMO - CHIRON Ludovic EI - O6 81 14 21 99 - Plus d'informations sur www.revo.immo (réf. 4901028384) Agent commercial RSAC ANGERS 879 661 544 Bien soumis au statut juridique de la Copropriété. Nb de lots : 141. Charges annuelles de copropriété (Montant moyen annuel quote-part du budget prévisionnel vendeur) : 2 670 . Pas de procédure en cours. Honoraires : 7,65 % TTC inclus charge acquéreur (85 000 hors honoraires) .Les informations sur les risques auxquels ce bien est exposé sont disponibles sur le site Géorisques : https://www.georisques.gouv.fr/.
70 m²
1 307 €
16 m²
4
2
1
1
4 sur 4
213 € / mois
1970
Aménagée
Oui
Oui (141 lots)
Consommations énergétiques
Logement économe
316
Logement énergivore (kWhEP/m2/an)
Émissions de gaz à effet de serre
Faible émission de GES
27
Forte émission de GES(kgeqCO2/m2/an)
Contact SAS REVO IMMO
Contacter gratuitement à l'aide du formulaire ci-dessous.