Bienvenue dans votre futur chez-vous ! Nous sommes ravis de vous présenter cette exclusivité de 2 chambres, bénéficiant de notre pack visibilité. Profitez de notre visite virtuelle et de photos haute qualité pour découvrir cette opportunité à saisir dans un secteur calme et recherché de Lucé.
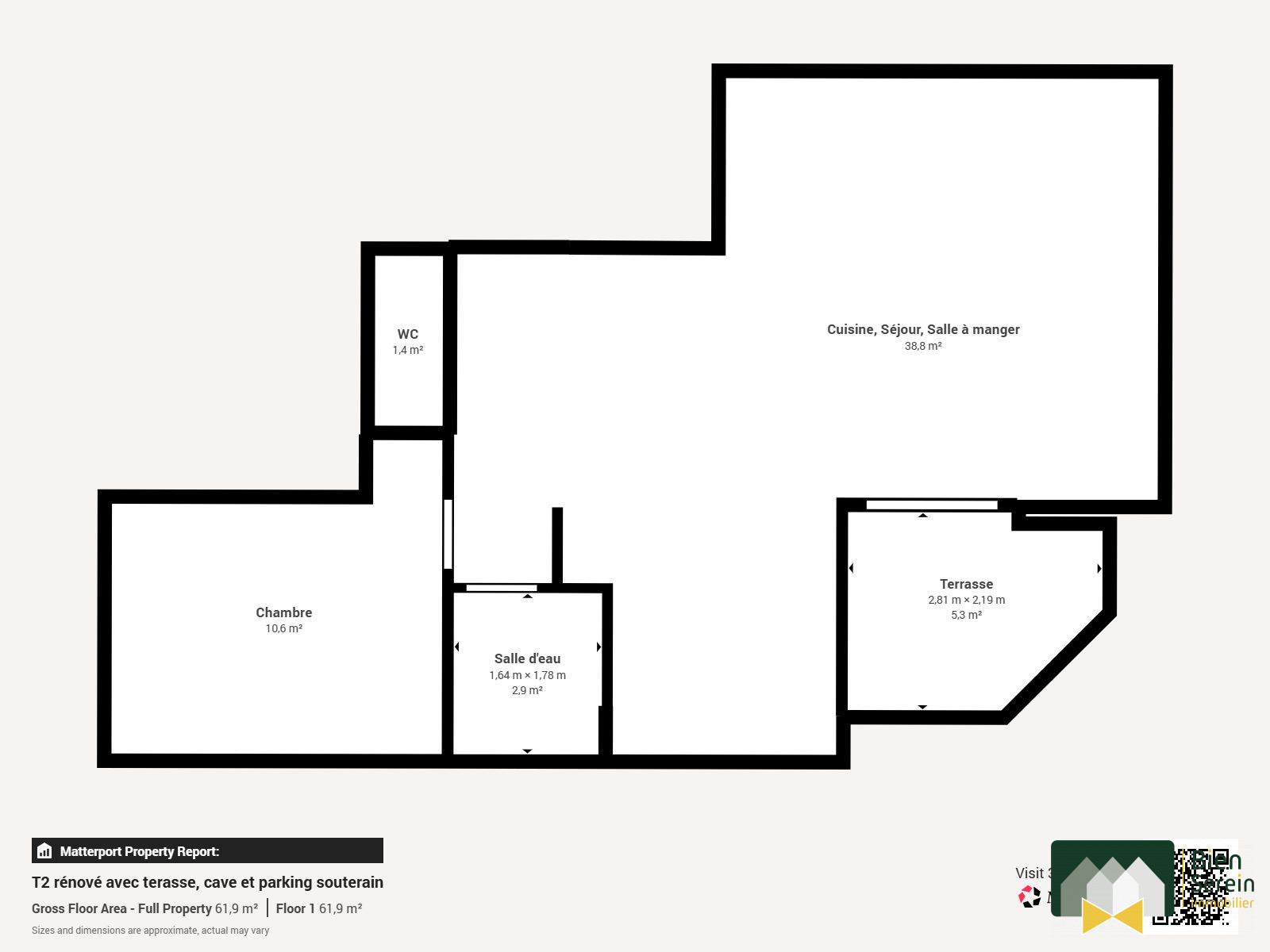
Découvrez un appartement composé comme suit
-Un séjour lumineux avec accès au balcon -Une cuisine aménagée -Deux chambres -Un WC indépendant -Une salle de bain
ESPACE EXTÉRIEUR
-Un balcon agréable -Une place de parking privative
CÔTÉ CONFORT
-Double vitrage PVC -Bonne exposition pour une luminosité optimale -Résidence sécurisée et bien entretenue
L'EMPLACEMENT
Il y a plusieurs établissements scolaires à moins de 10 minutes à pied. Niveau transports en commun, on trouve plusieurs gares à moins de 10 minutes en voiture. L'autoroute A11 et les nationales N123 et N154 sont accessibles à moins de 3 km. Vous trouverez également à proximité des commerces, restaurants, une boulangerie, une boucherie, un bureau de poste et divers services.
N'hésitez pas à contacter votre agent au Noeud Pap' pour obtenir plus d'informations et visiter cet appartement !
Honoraires à la charge du vendeur. Classe énergie D, Classe climat A Montant moyen estimé des dépenses annuelles d'énergie pour un usage standard, établi à partir des prix de l'énergie de l'année 2021 : entre 796.00 et 1078.00 . Les informations sur les risques auxquels ce bien est exposé sont disponibles sur le site Géorisques : georisques.gouv.fr.