Appartement Centre de La Tour De Salvagny 5 pièces 103 m2
La Tour-de-Salvagny 69890
0
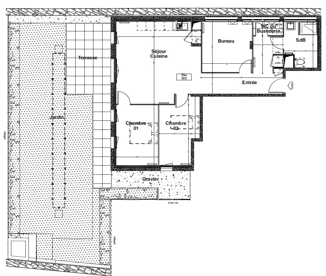
idéalement situé au centre de La Tour de Salvagny à proximité des commerces, bus et restaurants. Je vous propose de visiter cet appartement de Type T5 bien entretenue avec sa grande terrasse situé en rez de jardin. L'appartement dispose d'une cuisine indépendante, d'un salon donnant sur la terrasse de 29m², de 4 chambres, d'une salle d'eau et d'un WC indépendant. toutes les fenêtres ont été changées et l'appartement est en très bon état général Une place de parking et une cave complètent ce bien. Contactez moi au O6.69.26.64.26 pour plus d'informations Copropriété de 31 lots - dont 31 lots habitation. Charges annuelles : 2880 euros.