Goodshowcase
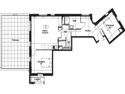
Vente appartement 3 pièces

Vente appartement 3 pièces
352 000 €

Annonces similaires

Vente appartement

Caluire-et-Cuire 69300 - 0

366 000 €

...Résidence contemporaine aux très belles prestations intérieures Bâtiment basse consommation,...

Voir l'annonce

Vente appartement

Saint-Didier-au-Mont-d'Or 69370 - 0

336 000 €

...L'appartement est vendu avec un garage en sous-sol...

Voir l'annonce

Vente appartement

Anse 69480 - 0

395 000 €

...Je vous propose de visiter ce très beau T4 de 83m² avec sa terrasse de 21m² et son jardin de...

Voir l'annonce

Vente appartement

Vaulx-en-Velin 69120 - 0

323 800 €

...Ce ravissant T5 saura vous séduire par sa situation, son séjour avec alcôve, sa cuisine...

Voir l'annonce