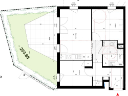
Dernière opportunité ! A CALUIRE je vous propose à la vente ce très beau T4 de 55,40m² avec sa Terrasse de 13,60m² et son jardin de 18m² dans une prochaine résidence de standing aux dernières normes comprenant : Une entrée, un séjour avec cuisine ouverte donnant sur la terrasse et sur le jardin, deux chambres, une salle de bain et un WC. Résidence contemporaine aux très belles prestations intérieures Bâtiment basse consommation, faibles charges Visuel non contractuel Merci de contacter votre conseiller Grégory pour plus d'informations Copropriété de 51 lots - dont 51 lots habitation. Charges annuelles : 800 euros.