EN EXCLUSIVITÉ : Venez découvrir ce bel appartement de 112m2 située en plein centre-ville de Lens.
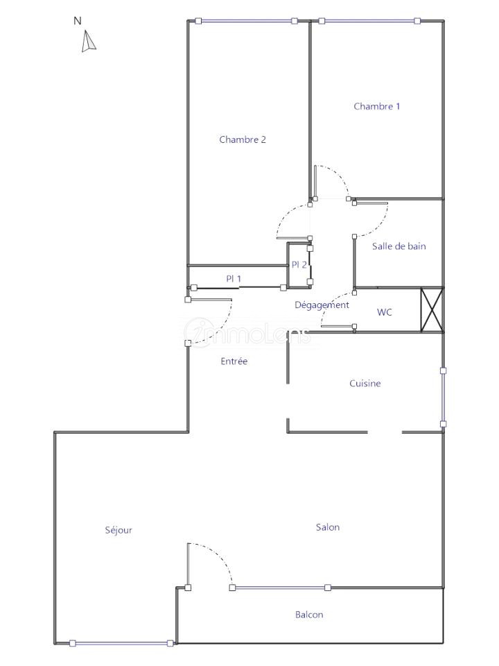
Dans une petite copropriété de 7 logements, cet appartement comprend une belle entrée, une cuisine équipée, 3 belles chambres (13 13 et 15m2), une salle de bain, une salle d'eau, un wc séparé, de multiples rangements et un grand séjour de plus de 32m2.
Une place de parking sécurisée complète ce bien proche de la gare de Lens.
VISITE VIRTUELLE SUR DEMANDE
Cette annonce référence 301027 vous est présentée par votre agent commercial BSK Immobilier DAVID IANNI-TRIGNANO (EIRL) immatriculé au RSAC de ARRAS (62000) sous le numéro 52475683000021.
Prix du bien : 129 000,00 €
Les honoraires d'agence sont à la charge du vendeur.
A propos des performances énergétiques :
Date de réalisation du diagnostic énergétique : 15/04/2024
Score DPE : 168 kWhEP/m²/an
Score GES : 36 kgepCO2/m²/an
Montant estimé des dépenses annuelles d'énergie pour un usage standard : entre 1302.00 € et 1762.00 € par an. Prix moyens des énergies indexés sur l'année 2021 (abonnements compris).
Les informations sur les risques auxquels ce bien est exposé sont disponibles sur le site Géorisques : www.georisques.gouv.fr
112 m²
1 152 €
4
3
1
1
1
2 sur 3
1952
Sud
Oui
Consommations énergétiques
Logement économe
168
Logement énergivore (kWhEP/m2/an)
Émissions de gaz à effet de serre
Faible émission de GES
36
Forte émission de GES(kgeqCO2/m2/an)
Contact Iad France - David IANNI-TRIGNANO
Contacter gratuitement à l'aide du formulaire ci-dessous.