Appartement d'architecte avec balcon donnant sur l'Église Sa
Paris 75006
0
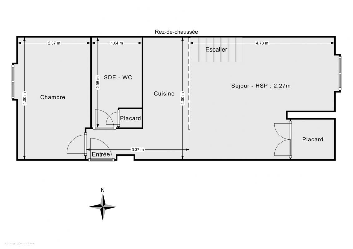
Appartement d'architecte avec balcon donnant sur l'Église Saint-Sulpice Paris 6e Saint-Sulpice / Luxembourg Bien rare à la vente, idéalement situé entre l'Église Saint-Sulpice et le Jardin du Luxembourg, dans l'un des quartiers les plus prisés de la rive gauche. Au 5e étage d'une belle copropriété sécurisée (interphone, vigik), découvrez ce 2 pièces de 41 m2 loi Carrez, repensé par un architecte, alliant élégance et optimisation des volumes. L'appartement offre de nombreux aménagements sur mesure et bénéficie d'une petite terrasse avec vue sur l'Église Saint-Sulpice. Il se compose d'une pièce de vie lumineuse avec cuisine équipée ouverte, d'une chambre avec dressing et débarras, ainsi que d'une salle d'eau avec WC. Le bien est calme, ensoleillé et parfaitement entretenu. Localisation exceptionnelle, à deux pas du métro Saint-Sulpice, de la place éponyme et du Jardin du Luxembourg. Ravalement de l'immeuble payé en cours.
41 m²
18 537 €
2 m²
2
1
1
1
5 sur 6
1804
Oui
Oui (1 lots)
Consommations énergétiques
Logement économe
324
Logement énergivore (kWhEP/m2/an)
Émissions de gaz à effet de serre
Faible émission de GES
10
Forte émission de GES(kgeqCO2/m2/an)
Contact DIANA
Contacter gratuitement à l'aide du formulaire ci-dessous.