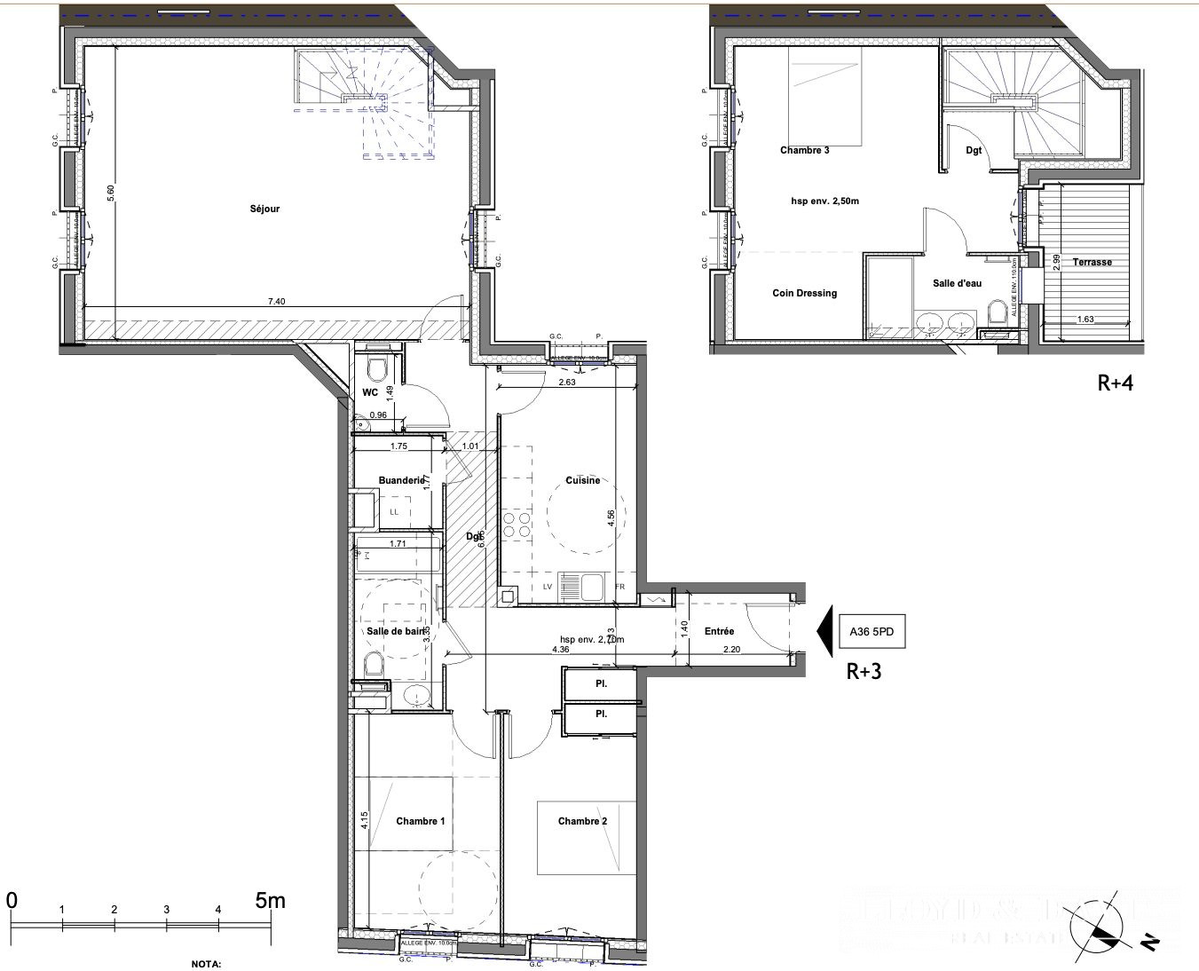
Découvrez cet appartement de luxe, construit en 2026, offrant un cadre de vie exceptionnel et une localisation privilégiée. Avec ses 100.41 m² de surface habitable, cet appartement de 4 pièces comprend 3 chambres spacieuses, un séjour de 29 m² baigné de lumière, une salle de bains et une salle d'eau, ainsi qu'un WC indépendant pour plus de confort. Imaginez-vous profiter de votre terrasse de 14 m², un havre de paix en plein coeur de la ville. L'ascenseur ajoute une touche de modernité et de praticité à votre quotidien. Cet appartement est une toile vierge, prête à accueillir vos idées et votre style. Chaque pièce est conçue pour maximiser l'espace et la lumière, créant une atmosphère chaleureuse et accueillante. Situé à proximité immédiate des transports en commun, vous pourrez accéder facilement à votre lieu de travail ou explorer la ville. Plusieurs écoles, crèches, restaurants, et commerces sont également à proximité, offrant un cadre de vie idéal pour les familles et les professionnels. Ne manquez pas cette opportunité unique de vivre dans un appartement neuf, alliant confort, modernité et localisation privilégiée. Contactez-nous dès aujourd'hui pour une visite et laissez-vous séduire par ce bijou immobilier. Commodités : À 5 min à pied, vous trouverez un bus, un métro, plusieurs écoles (maternelle, élémentaire, collège), plusieurs alimentations générales, plusieurs restaurants et plusieurs médecins généralistes. À 10 min à pied, vous trouverez une crèche, un parc et jardin, un hôpital et un tramway à 10 min en voiture.
Llyod & Davis Mouquet Escoty
Honoraires à la charge du vendeur. Dans une copropriété de 19 lots. Aucune procédure n'est en cours. Non soumis au DPE. Les informations sur les risques auxquels ce bien est exposé sont disponibles sur le site Géorisques : georisques.gouv.fr. Ce bien vous est proposé par un agent commercial (Entreprise individuelle).