Vos agences DURET IMMOBILIER vous accueillent téléphoniquement du lundi au samedi de 8h00 à 19h00 sans interruption.
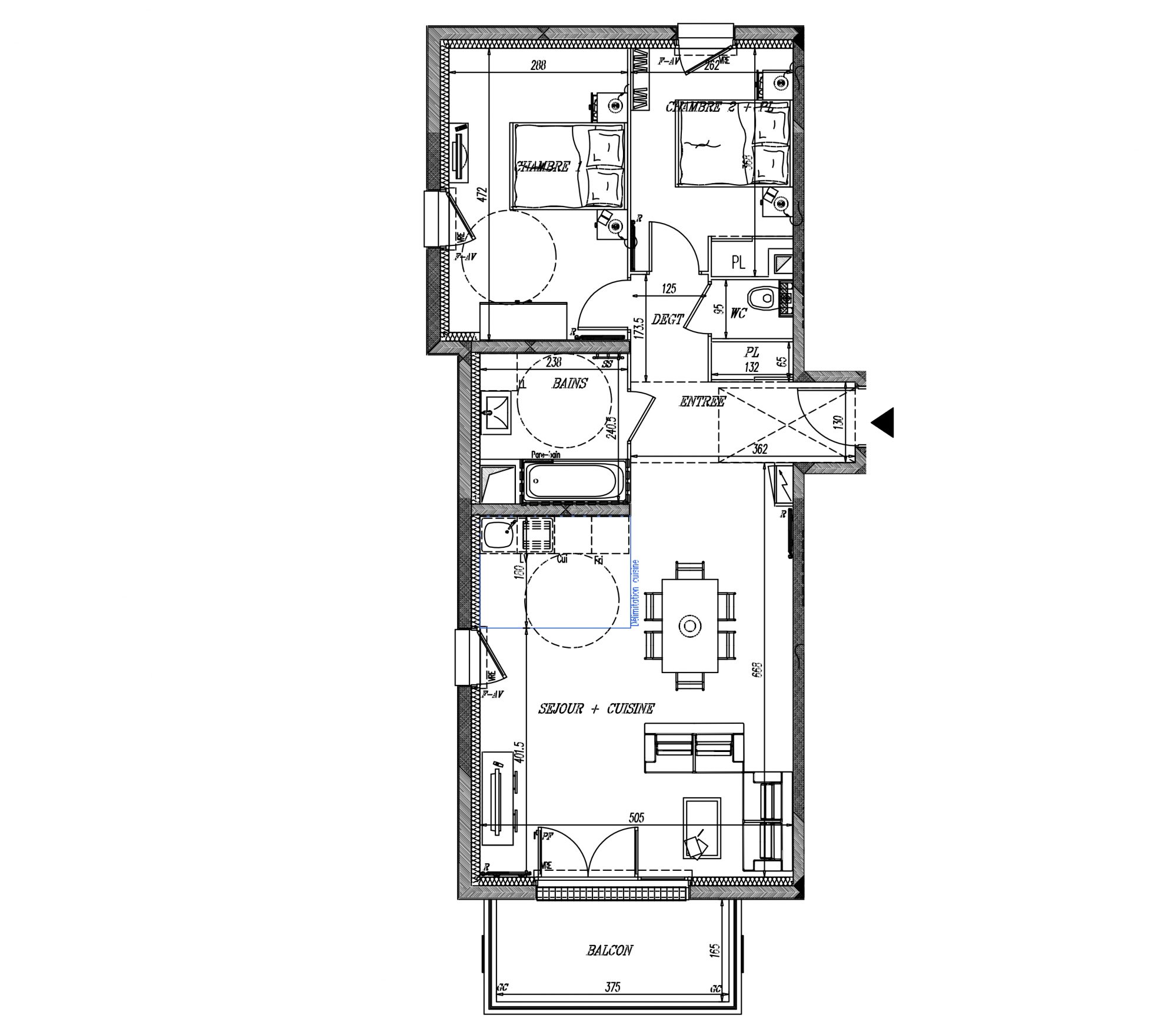
CLISSON CENTRE, idéalement situé quartier de la GARE, au coeur du centre ville. Appartement d'exception, pour votre résidence principale. Au 1er étage d'une résidence neuve découvrez cet appartement de 74 m² habitable comprenant : pièce de vie avec cuisine ouverte, salle d'eau, WC, 2 chambres. Terrasse de 15m². 2 Places de stationnement privatives.
N'hésitez pas à nous contacter pour plus d'informations / précisions.
Nous vous invitons à venir découvrir notre résidence lors de la Porte Ouverte le samedi 7 juin prochain de 9h à 12h30 située au 6 rue Bertin, CLISSON.
SD
Honoraires à la charge du vendeur. Dans une copropriété de 6 lots. Aucune procédure n'est en cours. DPE en cours. Les informations sur les risques auxquels ce bien est exposé sont disponibles sur le site Géorisques : georisques.gouv.fr.
74.2 m²
4 704 €
3
2
1
1
1 sur 2
2024
1
2
Oui (6 lots)
Contact
Contacter gratuitement à l'aide du formulaire ci-dessous.