Appartement d'exception de 220 m2 dans un immeuble en Pierre
Paris 75008
0
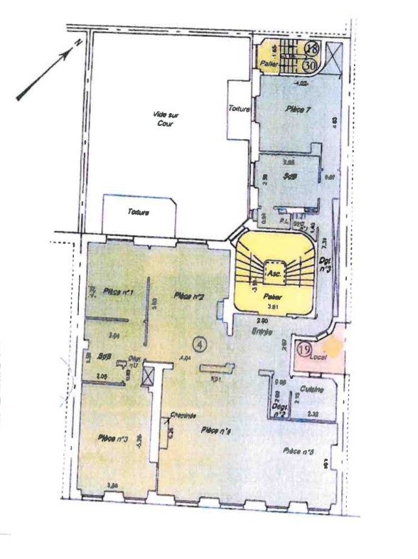
Situé au 4ème étage d'un somptueux immeuble en pierre de taille, cet appartement de 220 m2 allie harmonieusement le charme de l'ancien et le confort moderne.
Salon et salle à manger séparés, parfaits pour recevoir, grande cuisine aménageable selon vos besoins, salle de bains + salle d'eau et WC indépendants, 3 chambres spacieuses offrant un confort optimal.
Ce bien vous séduira par son atmosphère chaleureuse et élégante, idéale pour une famille ou comme projet d'investissement. Profitez de ses magnifiques cheminées d'époque, de son parquet d'origine et de ses moulures, véritables témoins du charme de l'ancien.
Volumes généreux et belle luminosité grâce à une exposition idéale, cave, emplacement privilégié.
Ne manquez pas cette opportunité rare ! Pour plus d'informations ou pour organiser une visite, contactez-nous dès maintenant.
Bien présenté par Agences de France par délégation.
Agences de France ? SIREN : 899413603 ? Titulaire de la carte T : 29012021000000009 non habilité à percevoir des fonds
220 m²
13 123 €
5
3
Oui
Contact Eiffel Dream Home
Contacter gratuitement à l'aide du formulaire ci-dessous.