Honoraires à la charge de l'acquéreur (Prix hors honoraires : 210000 euros).
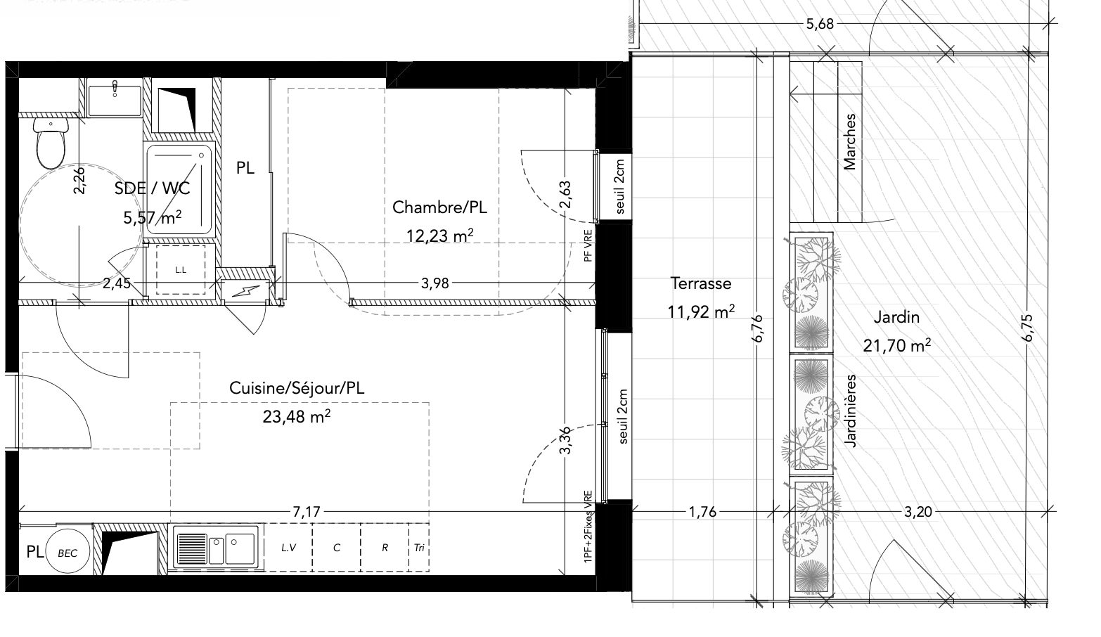
Au centre de Paimpol cet appartement T3 situé au RDC d'une petite copropriété, comprenant: un séjour avec cuisine aménagée et équipée, deux chambres avec chacune sa salle d'eau privative et son dressing, un jardin.
Honoraires inclus de 4.76% TTC à la charge de l'acquéreur. Prix hors honoraires 210 000 . Dans une copropriété de 9 lots. Aucune procédure n'est en cours. Classe énergie D, Classe climat B Montant estimé des dépenses annuelles d'énergie pour un usage standard : entre 641.00 et 910.00 sur les années 2021, 2022 et 2023 (abonnements compris). Les informations sur les risques auxquels ce bien est exposé sont disponibles sur le site Géorisques : georisques.gouv.fr.
Carte pro. CPI 2201 2016 000 005 950
57 m²
3 860 €
28 m²
3
2
2
1 (séparé)
1 sur 2
4.76 %
10/02/2025
1970
Sud
Ouest
Oui (9 lots)
Consommations énergétiques
Logement économe
221
Logement énergivore (kWhEP/m2/an)
Émissions de gaz à effet de serre
Faible émission de GES
7
Forte émission de GES(kgeqCO2/m2/an)
Contact OPTIMO
Contacter gratuitement à l'aide du formulaire ci-dessous.