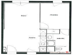
Immosquare Lyon vous propose en Exclusivité, dans une résidence de 2009, au deuxième et dernier étage, venez découvrir ce T2 d'environ 43.51m² + parking privée en S/Sol. LIEN VISITE VIRTUELLE disponible sur notre site internet ou sur demande. Il se compose d'une pièce à vivre (séjour + cuisine US) lumineuse, une chambre avec rangement, une salle d'eau avec WC et une place de parking privée en S/Sol! Les plus : double vitrage PVC, résidence récente, parking... Contact : Anthony AVIAS : 006 18 78 55 89. Loi ALUR : Soumis au régime de copropriété, Nombre de lots = 66, Quote-part annuelle des charges environ 1102.31 Euros. Les informations sur les risques auxquels ce bien est exposé sont disponibles sur le site Géorisques.
Honoraires à la charge du vendeur. Dans une copropriété de 66 lots. Quote-part moyenne du budget prévisionnel 1 102 /an. Aucune procédure n'est en cours. Classe énergie D, Classe climat B Montant estimé des dépenses annuelles d'énergie pour un usage standard : entre 850.00 et 1200.00 sur les années 2021, 2022 et 2023 (abonnements compris). Les informations sur les risques auxquels ce bien est exposé sont disponibles sur le site Géorisques : georisques.gouv.fr.
43.51 m²
3 425 €
27 m²
2
1
1
1
2 sur 2
92.00 € / mois
2009
1
Oui (66 lots)
Consommations énergétiques
Logement économe
191
Logement énergivore (kWhEP/m2/an)
Émissions de gaz à effet de serre
Faible émission de GES
7
Forte émission de GES(kgeqCO2/m2/an)
Contact IMMOSQUARE LYON
Contacter gratuitement à l'aide du formulaire ci-dessous.