À VENDRE ? FONTENAY-AUX-ROSES - APPARTEMENT D'EXCEPTION 5 PIÈCES ? DERNIER ÉTAGE ? TERRASSES & JARDIN D'HIVER
Localisation idéale : À seulement 200 mètres du parc du Panorama et à proximité du centre-ville, cet appartement allie calme et accessibilité. La coulée verte est à 10 minutes de marche pour se promener.
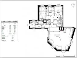
Surface et agencement :
141,4 m² habitables, 5e et dernier étage, orientation nord et sud pour une luminosité optimale toute la journée.
3 terrasses d'une surface totale de 37,4 m² et une terrasse plantée de 23,1 m², idéales pour profiter de l'extérieur en toute intimité.
Jardin d'hiver de 9,6 m², espace agréable et lumineux.
Une entrée avec placard, une salle de séjour spacieuse avec cuisine ouverte donnant sur terrasses, une suite parentale avec salle d'eau, deux chambres avec terrasse, une salle de bain incluant des toilettes, un cabinet de toilettes, un cellier et un dégagement.
Atouts majeurs :
Salle de séjour à triple exposition, sud-est, sud et sud-ouest, pour une ambiance lumineuse et aérée.
Espaces extérieurs généreux : terrasses et jardin d'hiver pour des moments de détente en plein air.
Agencement fonctionnel : salle de séjour spacieuse, grandes chambres, nombreux rangements.
Calme absolu : dernier étage, sans vis-à-vis.
Option : 3 places de parking disponibles en sus pour 51 000 €.
Coup de c?ur garanti pour ce bien rare alliant espace, lumière et localisation privilégiée.
Localisation idéale :
À proximité des transports (RER B "Fontenay-aux-Roses", 15 min de marche ; tramway ligne T6 (ligne de Viroflay rive droite à Châtillon-Montrouge) station "Division Leclerc", 10 min de marche ; autobus 394 (ligne d'Issy Val de Seine à Bourg-la-Reine RER), arrêt "Jacquemin", à côté.), vous rejoindrez facilement Paris et ses environs. Vous trouverez également à deux pas tous les commerces, un marché couvert, des supermarchés et services indispensables au quotidien, en plus du parc du Panorama et de courts de tennis.
Cet appartement est une occasion rare : espace, confort et emplacement stratégique réunis dans un même bien ! Efficacité énergétique et faibles charges et son isolation renforcée . La résidence répond à la nouvelle norme RE2020 qui vous garantira un confort maximal pour une consommation réduite .Cette acquisition vous permettra de bénéficier des garanties du constructeur vous assurant une sérénité sur votre investissement .
Visites : Sur rendez-vous.
Les informations sur les risques auxquels ce bien est exposé sont disponibles sur le site Georisque : georisques. gouv. fr
Wesley Capelo Baubil - EI - est Agent Commercial mandataire en immobilier, immatriculé au Registre Spécial des Agents Commerciaux du Tribunal de Commerce de Nanterre sous le n°480092089.
Siège social du mandant : effiCity, 48 avenue de Villiers - 75017 PARIS - Société par Actions Simplifiée, société au capital de 132 373,05 euros, immatriculée au RCS Paris 497 617 746 et titulaire de la Carte professionnelle CPI 7501 2015 000 002 025 - CCI Paris IDF - Caisse de Garantie : GALIAN Assurances 89 rue de la Boétie 75008 Paris
142 m²
7 352 €
67 m²
4
3
1
1
2
5 sur 5
2025
Nord
Oui
Oui
Contact M. Wesley Capelo Baubil
Contacter gratuitement à l'aide du formulaire ci-dessous.