À VENDRE ? CROSNE (94) ? Appartement T2 1er ETAGE ? 47,08 m² ? ORIENTATION NORD-NORD-EST ? PROCHE TRANSPORTS & NATURE
Emplacement idéal, vie pratique et sérénité garantie !
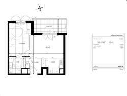
Découvrez ce T2 de 47,08 m² au 1er étage d'un immeuble de 3 étages, orienté nord-nord-est. Situé à Crosne, cet appartement allie confort, efficacité énergétique et emplacement stratégique pour un quotidien facilité.
Description du bien
Surface : 47,08 m².
Pièces : entrée avec placard, cuisine ouverte, salle de séjour avec balcon de 8,24 m², chambre avec espace bureau, salle de bain, cabinet de toilette.
Orientation : nord-nord-est.
Résidence : Norme RE2020 (isolation renforcée, faibles charges, efficacité énergétique).
Stationnement : aires de stationnement en extérieur et en sous-sol.
Local à vélos sécurisé.
Transports en commun
R.E.R. D, gare "Villeneuve-Saint-Georges" : à 15 minutes de marche ou 4 min de vélo, puis 24 minutes jusqu'à Châtelet-Les Halles
R.E.R. D, gare "Montgeron-Crosne" : 22 minutes de marche ou 6 minutes de vélo, puis 28 minutes jusqu'à Châtelet-Les Halles
Bus (450, 4135, 4152, 4153) : Arrêt "Remonteru"à 3 minutes de marche
Cadre de vie
Écoles : crèche, école maternelle et primaire à proximité ;
Santé : cabinet médical, hôpital et deux cliniques à moins de 10 minutes de marche ;
Commerces : supermarché, boutiques d'alimentation, banques et mairie à 10 minutes de marche.
Nature : à 10 minutes de marche du parc de l'île aux Prévôts et des rives de l'Yerres, 15 minutes de vélo de la forêt domaniale de Sénart ; 26 minutes de voiture du centre nautique de Viry-Châtillon.
Atouts majeurs
Garanties constructeur : Sérénité pour votre investissement.
Charges réduites grâce à la norme RE2020.
Classe énergétique : entre A et B.
Accès rapide à Paris et aux axes routiers.
Environnement calme et verdoyant.
Une occasion rare à saisir ! Idéal
Les informations sur les risques auxquels ce bien est exposé sont disponibles sur le site Georisque : georisques. gouv. fr
Wesley Capelo Baubil - EI - est Agent Commercial mandataire en immobilier, immatriculé au Registre Spécial des Agents Commerciaux du Tribunal de Commerce de Nanterre sous le n°480092089.
Siège social du mandant : effiCity, 48 avenue de Villiers - 75017 PARIS - Société par Actions Simplifiée, société au capital de 132 373,05 euros, immatriculée au RCS Paris 497 617 746 et titulaire de la Carte professionnelle CPI 7501 2015 000 002 025 - CCI Paris IDF - Caisse de Garantie : GALIAN Assurances 89 rue de la Boétie 75008 Paris
47 m²
4 255 €
20 m²
2
1
1
1
1 sur 3
2026
Nord
Oui
Oui
Contact M. Wesley Capelo Baubil
Contacter gratuitement à l'aide du formulaire ci-dessous.