Appartement neuf 4 pièces en rez-de-chaussée avec garage
Arçonnay 72610
0
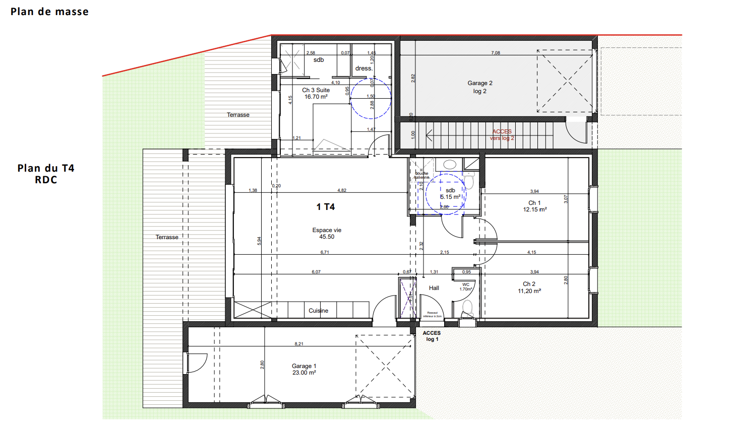
À vendre Appartement neuf 4 pièces en rez-de-chaussée avec garage Découvrez ce spacieux appartement neuf de 92,40 m2, situé en rez-de-chaussée et conçu pour offrir confort et modernité.
Grande pièce de vie lumineuse : 45,50 m2
Chambre 1 : 12,15 m2
Chambre 2 : 11,20 m2
Suite parentale : 16,70 m2
Salle de bain contemporaine : 5,15 m2
WC séparés : 1,70 m2
Un garage privatif de 23 m2 vient compléter ce bien. Cet appartement neuf séduit par sa belle suite parentale, ses volumes généreux et son grand espace de vie, idéal pour accueillir une famille dans un cadre moderne et fonctionnel.
92.4 m²
3 729 €
45 m²
4
3
1
1
2026
Ouest
2
1
Oui
1
Oui
Oui
Oui
Oui
Contact ANGLE IMMOBILIER
Contacter gratuitement à l'aide du formulaire ci-dessous.