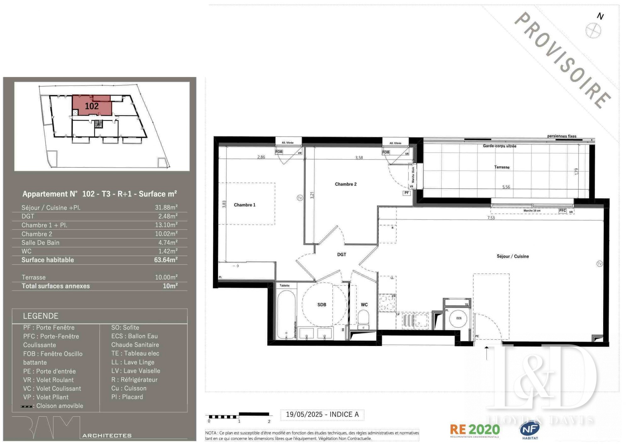
À seulement quelques minutes de Montpellier, découvrez une nouvelle adresse de charme au coeur du village de Castries. Dans un environnement privilégié, entre patrimoine historique et douceur de vivre, ce projet offre une qualité de vie rare, mariant l'authenticité du cadre à la modernité des prestations. À deux pas du château et de l'aqueduc, cette résidence intimiste s'intègre harmonieusement dans son environnement, en respectant l'esprit du lieu avec une architecture contemporaine élégante et discrète. Composée de seulement dix appartements du T2 au T4, elle préserve l'intimité et le confort de ses habitants. Les logements, lumineux et parfaitement agencés, proposent de beaux espaces extérieurs, de larges ouvertures, une excellente isolation phonique et thermique ainsi que des stationnements privatifs. Chaque appartement a été pensé pour offrir un équilibre idéal entre bien-être et fonctionnalité, dans une atmosphère calme et apaisante. Habiter ici, c'est choisir un lieu de vie unique à Castries, où le charme du passé rencontre le confort d'aujourd'hui, dans un cadre verdoyant et accessible. Découvrez y un appartement T3 de 54m2 avec un balcon de 11m2. Il est composé d'une pièce de vie, d'une chambre, d'une salle de bain avec un WC. DEUX Parkings inclus dans le prix. Les avantages d'acheter un logement neuf avec PRODEOM :
oPrix direct promoteur : pas de frais d'agence. oFrais de notaire réduits entre 2 et 3% (contre 8% dans l'ancien). oPerformance énergétique conforme aux normes RE2020. oExonération partielle de la taxe foncière les premières années. oPossibilité de Prêt à Taux 0% d'intérêts bancaires jusqu'à la MOITIÉ du prix du bien (50%)
oMoins de charges et pas de travaux pendant au moins 15 ans. oGarantie de construction pendant 10 ans.
Contactez-nous pour recevoir la documentation complète et découvrir les derniers appartements disponibles.
54 m²
5 907 €
11 m²
3
2
1
1
1 sur 1
12/05/2027
2025
Sud
Est
1 (11 m²)
Oui
2
Oui
1
Oui
Oui (10 lots)
Consommations énergétiques
Logement économe
40
Logement énergivore (kWhEP/m2/an)
Émissions de gaz à effet de serre
Faible émission de GES
5
Forte émission de GES(kgeqCO2/m2/an)
Contact Prodeom Immobilier
Contacter gratuitement à l'aide du formulaire ci-dessous.