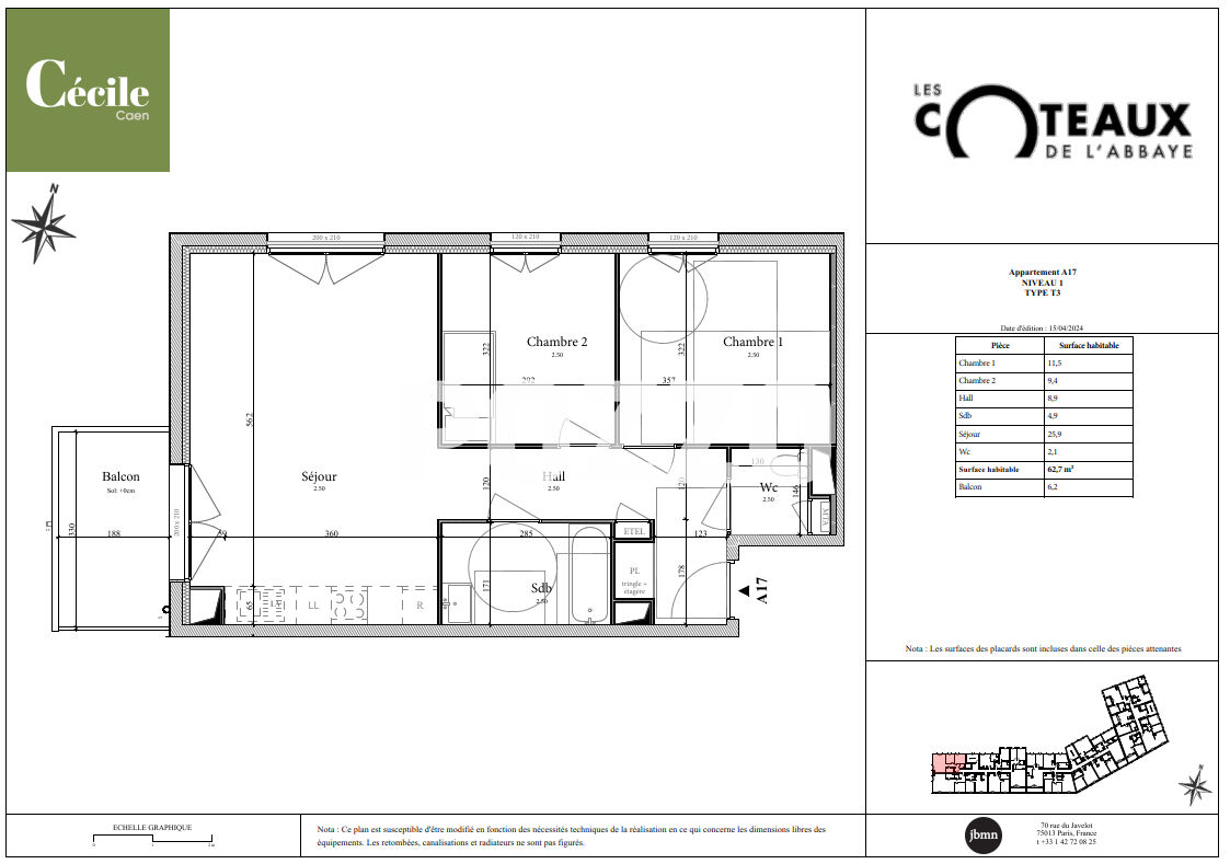
Appartement non meublé 3 pièces avec balcon, cave et garage
Deauville 14800
0
Honoraires à la charge de l'acquéreur (Prix hors honoraires : 0 euros).
Les charges de location sont prévisionnelles mensuelles avec régularisation annuelle.
A LOUER !
Appartement T3 non meublé en bon état, situé à Deauville, comprenant un séjour lumineux, une cuisine équipée, deux chambres, une salle de bain avec douche à l'italienne et WC séparés. Le bien dispose également d'un balcon, d'une cave privative et d'un garage avec porte électrique.
Honoraires de 456 TTC à la charge du locataire. Loyer de base 850 /mois. Provision sur charges 50 /mois, régularisation annuelle. Dépôt de garantie 850 . Classe énergie D, Classe climat A Montant estimé des dépenses annuelles d'énergie pour un usage standard : entre 810.00 et 1140.00 sur les années 2021, 2022 et 2023 (abonnements compris). Les informations sur les risques auxquels ce bien est exposé sont disponibles sur le site Géorisques : georisques.gouv.fr.