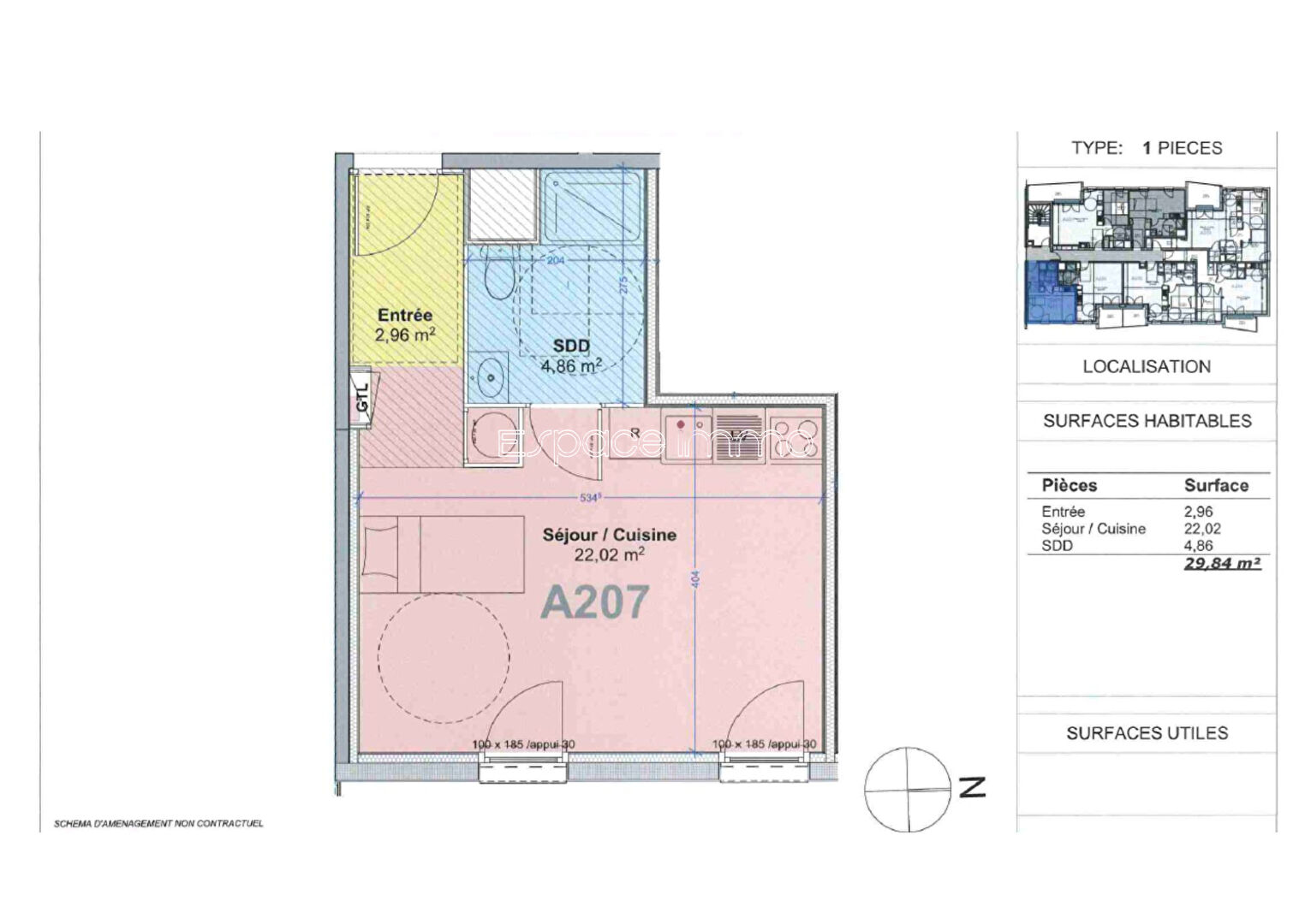
Votre agence ESPACE IMMO vous propose ce studio fonctionnel et lumineux, situé en plein coeur de Maromme, à proximité immédiate des commerces, des transports et des services du quotidien. La résidence offre des prestations de qualité et un cadre agréable. Entrée avec placard de rangement, pour optimiser l'espace. Pièce principale ouverte sur la cuisine, équipée des attentes nécessaires pour votre aménagement. Salle de douche avec vasque et WC, pour un confort quotidien. La copropriété bénéficie d'une conception soignée avec une bonne isolation thermique, garantissant un cadre de vie agréable. !! Emplacement stratégique !! Située aux portes de Rouen, Maromme combine confort urbain et cadre verdoyant. Points forts de la commune : -Transports efficaces : ligne 41 du Réseau Astuce, accès rapide à Rouen via l'A150. - Vie locale dynamique : équipements sportifs, associations, événements culturels. - Services et commerces : écoles, collèges, commerces de proximité. - Cadre naturel : parcs et promenades le long de la Seine. Ce studio est idéal pour : - un étudiant proche du Campus Universitaire de Mont-Saint-Aignan, - un investissement locatif, - une première acquisition pratique et fonctionnelle. Contactez l'agence ESPACE IMMO nous vous fournirons toutes les informations et organiserons une visite. Les informations sur les risques auxquels ce bien est exposé sont disponibles sur Géorisques.