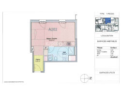
Votre agence ESPACE IMMO vous propose ce studio fonctionnel et lumineux, situé en plein coeur de Maromme, à proximité des commerces, des transports et de tous les services du quotidien. La résidence offre un cadre agréable et des prestations de qualité. La visite débute par : Une entrée avec placard de rangement, pour optimiser l'espace. Une pièce principale ouverte sur la cuisine, avec toutes les attentes nécessaires pour votre aménagement. Une salle de douche avec vasque et WC, pour un confort quotidien. La copropriété bénéficie d'une conception soignée et d'une bonne isolation thermique, assurant un cadre de vie agréable et confortable. !! Localisation recherchée !! Située aux portes de Rouen, Maromme combine confort urbain et espaces verts. Atouts de la commune : - Transports efficaces : ligne 41 du Réseau Astuce, accès rapide à Rouen via l'A150. - Vie locale dynamique : équipements sportifs, associations et événements culturels. - Services et commerces : écoles, collèges, commerces de proximité. - Cadre naturel : parcs et promenades le long de la Seine. Idéal pour : - un étudiant proche du Campus Universitaire de Mont-Saint-Aignan - un investissement locatif - une première acquisition pratique et fonctionnelle Contactez l'agence ESPACE IMMO pour plus d'informations ou pour organiser une visite ! Les informations sur les risques auxquels ce bien est exposé sont disponibles sur Géorisques.