Appartement T1bis avec balcon, cave et parking / Grand Rond - Du
Toulouse 31000
0
Honoraires à la charge de l'acquéreur (Prix hors honoraires : 150000 euros).
TOULOUSE GRAND ROND / DUPUY
T1 bis avec balcon et parking Emplacement privilégié
À quelques pas de la Place Dupuy, des Allées François Verdier, du Jardin du Grand Rond et du Canal du Midi, découvrez cet appartement idéalement situé au coeur d'un secteur central et recherché de Toulouse.
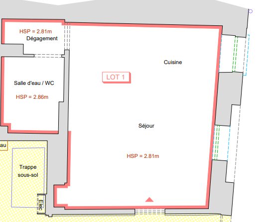
Au 2? étage sur 4 d'une copropriété bien entretenue, ce T1 / T1 bis de 34,32 m² bénéficie d'un environnement calme tout en étant à proximité immédiate des commerces, transports et commodités.
L'appartement se compose : d'une pièce principale lumineuse d'environ 23 m² ouvrant sur un agréable balcon filant, d'une cuisine indépendante avec fenêtre, d'une salle d'eau, de WC séparés. Trois ouvertures apportent une belle luminosité naturelle.
Le bien est actuellement dans son état d'origine et nécessite une rénovation, offrant ainsi un beau potentiel d'aménagement et de valorisation dans un secteur premium.
Un véritable atout dans ce quartier recherché : ?? une place de stationnement privative ?? une cave ?? balcon sur toute la longueur de l'appartement
Chauffage individuel au gaz (chaudière récente). Copropriété ayant fait l'objet de travaux importants ces dernières années (façades, balcons, portail, VMC).
Idéal pour un investissement patrimonial, un projet locatif ou un premier achat avec valorisation.
Bien vendu libre de toute occupation
Prix : 159 000 FAI Honoraires de 9 000 à la charge de l'acquéreur Prix hors honoraires : 150 000
Honoraires inclus de 6% TTC à la charge de l'acquéreur. Prix hors honoraires 150 000 . Dans une copropriété de 94 lots. Aucune procédure n'est en cours. Classe énergie D, Classe climat D Montant estimé des dépenses annuelles d'énergie pour un usage standard : entre 779.00 et 1055.00 sur les années 2021, 2022 et 2023 (abonnements compris). Les informations sur les risques auxquels ce bien est exposé sont disponibles sur le site Géorisques : georisques.gouv.fr.