Emilie MARTIN ? Réseau BSK Immobilier vous propose en exclusivité cet appartement T2 situé en rez-de-jardin dans une copropriété sécurisée, au c?ur de Crevin. Une opportunité idéale pour un investissement serein et pérenne.
Un bien fonctionnel et agréable :
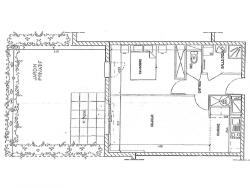
- Entrée avec placard pour un espace optimisé
- Salon-séjour lumineux avec cuisine ouverte, aménagée et équipée
- Chambre spacieuse, offrant tout le confort nécessaire
- Salle d'eau fonctionnelle
- Jardinet privatif, parfait pour profiter de l'extérieur en toute tranquillité
- Place de parking réservée
Un investissement sécurisé :
- Locataire en place jusqu'en décembre 2027
- Loyer mensuel charges comprises : 560 € (dont 40 € de charges)
- Location non meublée
Un emplacement privilégié
Idéalement situé, ce bien bénéficie d'une proximité immédiate avec les commodités et d'un accès direct à la 2x2 voies, facilitant les déplacements.
Une belle opportunité pour investir en toute sérénité.
Contactez-moi dès maintenant pour plus d'informations ou organiser une visite.
Cette annonce référence 272412 vous est présentée par votre agent commercial BSK Immobilier EMILIE MARTIN (EI) immatriculé au RSAC de RENNES (35000) sous le numéro 79126710700021.
Prix du bien : 143 000,00 €
Les honoraires d'agence sont à la charge du vendeur.
A propos de la copropriété :
Procédure en cours.
Nombre de lots : 2
Charges prévisionnelles annuelles : 765,00 €
A propos des performances énergétiques :
Date de réalisation du diagnostic énergétique : 20/10/2021
Score DPE : 164 kWhEP/m²/an
Score GES : 5 kgepCO2/m²/an
Montant estimé des dépenses annuelles d'énergie pour un usage standard : entre 711.00 € et 961.00 € par an. Prix moyens des énergies indexés sur l'année 2021 (abonnements compris).
Les informations sur les risques auxquels ce bien est exposé sont disponibles sur le site Géorisques : www.georisques.gouv.fr
45 m²
3 178 €
2
1
1
1
2011
Oui
Consommations énergétiques
Logement économe
164
Logement énergivore (kWhEP/m2/an)
Émissions de gaz à effet de serre
Faible émission de GES
5
Forte émission de GES(kgeqCO2/m2/an)
Contact Iad France - Emilie MARTIN
Contacter gratuitement à l'aide du formulaire ci-dessous.