RECHERCHE pour un client avec un financement vérifié par mon service financier.
Appartement en rez-de-jardin ou avec un ascenseur sur la commune de Crevin de préférence ou une ville environnante.
Une maison de plain-pied serait également la bienvenue.
Vous avez un projet de vente? J'ai peut-être l'acquéreur qui saura donner une nouvelle aventure à votre bien.
Vous souhaitez connaître la valeur de votre bien gratuitement et sans engagement je suis disponible par téléphone ou par mail.
A bientôt !
Émilie MARTIN
Cette annonce référence 260824 vous est présentée par votre agent commercial BSK Immobilier EMILIE MARTIN (EI) immatriculé au RSAC de RENNES (35000) sous le numéro 79126710700021.
Prix du bien : 143 000,00 €
Les honoraires d'agence sont à la charge du vendeur.
A propos de la copropriété :
Pas de procédure en cours.
Nombre de lots : 2
Charges prévisionnelles annuelles : 765,00 €
A propos des performances énergétiques :
Date de réalisation du diagnostic énergétique : 20/10/2021
Score DPE : 164 kWhEP/m²/an
Score GES : 5 kgepCO2/m²/an
Montant estimé des dépenses annuelles d'énergie pour un usage standard : entre 711.00 € et 961.00 € par an. Prix moyens des énergies indexés sur l'année 2021 (abonnements compris).
Les informations sur les risques auxquels ce bien est exposé sont disponibles sur le site Géorisques : www.georisques.gouv.fr
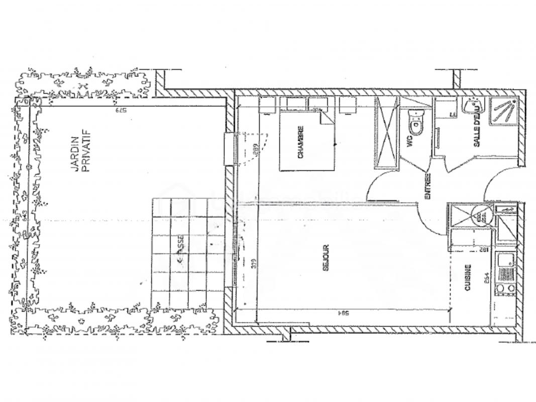
46 m²
3 109 €
2
1
1
2011
Oui
Consommations énergétiques
Logement économe
164
Logement énergivore (kWhEP/m2/an)
Émissions de gaz à effet de serre
Faible émission de GES
5
Forte émission de GES(kgeqCO2/m2/an)
Contact Iad France - Emilie MARTIN
Contacter gratuitement à l'aide du formulaire ci-dessous.