Appartement T3 - 77m2 - 2 Chambres Découvrez cet appartement, idéalement situé à Givors quartier de La Freydière .
Une Oasis de Calme , Imaginez cet appartement T3 de 77 m², niché au 2ème étage sans ascenseur d'un charmant immeuble , et être immédiatement enveloppé par une atmosphère à la fois chaleureuse et apaisante. Ouvrir les fenêtres et entendre les oiseaux chanter !
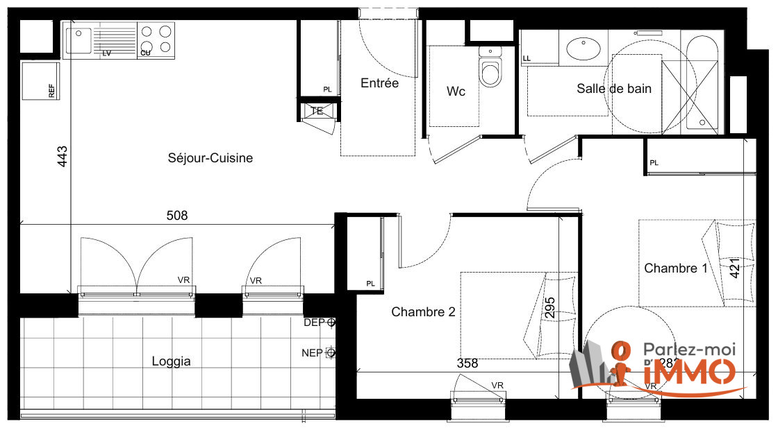
Un Espace de Vie Spacieux et Lumineux Dès l'entrée un placard mural pour ranger vos affaires, ensuite vous serez saisi par la magnifique pièce de vie de 42 m², un espace à vivre généreux et lumineux grâce à ses ouvertures en bois et double vitrage. Cette pièce, véritable coeur battant de l'appartement, peut accueillir vos moments de convivialité, vos dîners entre amis ou simplement vos instants de détente en famille. La cuisine ouverte aménagée s'intègre harmonieusement, offrant tout le confort nécessaire pour préparer vos repas tout en restant en contact avec vos invités.
Les deux chambres, d'une taille généreuse environs 12 m2, avec placard, sont des havres de paix où vous pourrez vous ressourcer après une longue journée. La salle d'eau et le WC à rafraîchir, complètent cet espace de vie fonctionnel .
Honoraires à la charge du vendeur. Dans une copropriété de 18 lots. Quote-part moyenne du budget prévisionnel 1 080 /an. Aucune procédure n'est en cours. Classe énergie D, Classe climat B Montant moyen estimé des dépenses annuelles d'énergie pour un usage standard, établi à partir des prix de l'énergie de l'année 2021 : entre 1533.00 et 2075.00 . Les informations sur les risques auxquels ce bien est exposé sont disponibles sur le site Géorisques : georisques.gouv.fr.
Votre conseiller CAPS immobilier : Françoise Fambon Agent commercial (Entreprise individuelle) RSAC 509369914. Nous rémunérons les apporteurs d'affaires, vous nous aidez nous vous récompensons !
77 m²
1 883 €
42 m²
3
2
1
1
2
1940
Oui
1
Oui (18 lots)
Consommations énergétiques
Logement économe
210
Logement énergivore (kWhEP/m2/an)
Émissions de gaz à effet de serre
Faible émission de GES
8
Forte émission de GES(kgeqCO2/m2/an)
Contact Iad France - Francoise FAMBON
Contacter gratuitement à l'aide du formulaire ci-dessous.