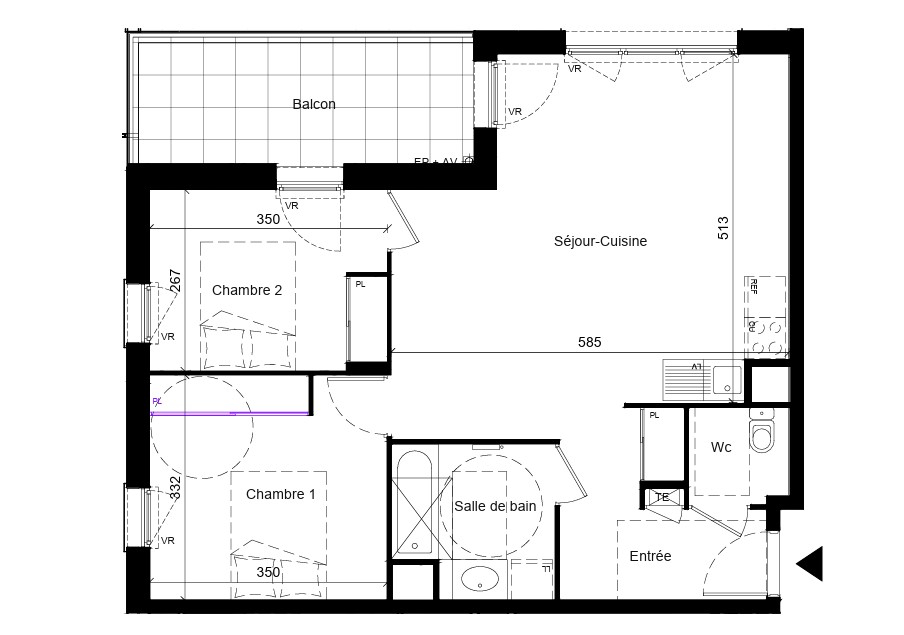
GIVORS à l'angle de l' Avenue Gagarine et de la Rue Léo Lagrange, proche commodités, commerces, école, collège, gare SNCF et à seulement 20min de Lyon !PARLEZ-MOI D'IMMO vous propose un appartement T3 de 59.70m² avec loggia de 7.60m² et stationnement couvert, situé au 1er étage d'une résidence neuve, moderne et sécurisée. TVA à 5.5% sous conditions d'éligibilité et frais de notaire réduits à 2.5%!L'appartement se compose d'une entrée avec placard, d'un séjour avec cuisine ouverte de plus de 23m², de deux chambres équipées d'un placard intégré, d'une salle de bain et d'un WC. Enfin, la loggia exposée sud est accessible par le séjour.Ce logement présente des prestations de qualités pour assurer l'esthétisme, le confort et la sécurité : revêtement parquet stratifié pour le séjour/cuisine, chambre et carrelage pour salle de bain/WC. Fenêtres alu , volets roulants alu manuels, porte palière serrure de sûreté 3 points. Production de chauffage et d'eau chaude individuelle (avec capteur de calories) par réseau urbain. Programmation et régulation du chauffage avec thermostat d'ambiance. Vidéophone.Livraison 4ème trimestre 2026.Mentions légales: Les informations sur les risques auxquels les biens sont exposés sont disponibles sur le site Géorisques: www.georisques.gouv.fr, les honoraires sont à la charge du vendeur, notre barème est consultable sur notre site. Le bien est soumis au régime de copropriété, nombre de lots: 109. Aucune procédure en cours menée sur le fondement des articles 29-1 A et 29-1 de la loi n°65-557 du 10 juillet 1965 et de l'article L.615-6 du CCH. Pour toutes informations complémentaires ou rendez-vous, n'hésitez pas à contacter Morgane BLE votre conseillère indépendante spécialisée sur le secteur au O6 99 73 77 81, Statut Agent Commercial RSAC de Villefranche/Tarare
Honoraires à la charge du vendeur. Dans une copropriété de 109 lots. Aucune procédure n'est en cours. DPE en cours. Les informations sur les risques auxquels ce bien est exposé sont disponibles sur le site Géorisques : georisques.gouv.fr.