Appartement T3 70m2 avec exterieur de 13m2 - 6eme étage vue sur
Lyon 69002
0
Honoraires à la charge du vendeur.
Appartement T3 de 70m² avec balcon de 13,19m² au 6eme étage sur 16 dans une résidence sur LYON 2 Confluence
Partout, la nature est là. Sur les toits, derrière les fenêtres, aux abords des voies piétonnes, elle accompagne chaque déplacement, chaque minute de la vie des habitants pour un ressourcement de tous les instants.
Les + : Hauteur sous plafond de 2,50 m Véritable lieu de vie où il fera bon travailler et habiter Proximité immédiate de toutes les commodités Prix : 490 000 - Parking velo indépendant
Disponible T1 2026
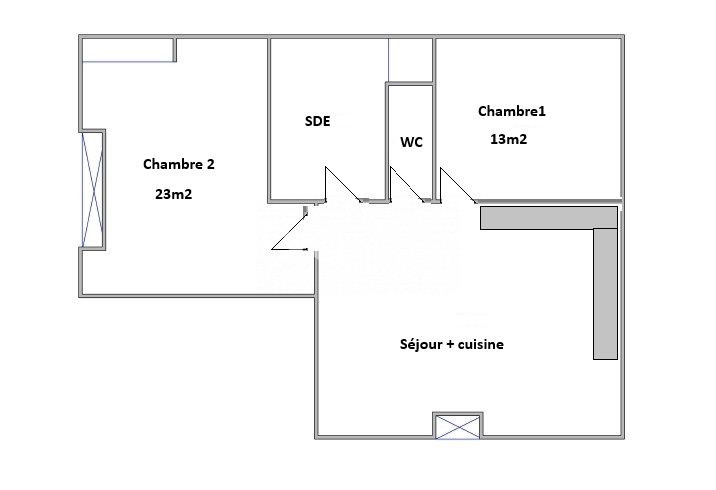
L'appartement comprend : un hall d'entrée un séjour cuisine donnant sur un balcon de 13m2 vue sur LYON deux chambres avec rangement salle de bain WC séparé Une buanderie Cellier La résidence : toutes les commodités à proximité immédiate résidence sécurisée coeur d'ilot végétalisé Premier quartier durable labellisé par le WWF en France, Lyon Confluence est une référence internationale pour les performances énergétiques exemplaires de ses bâtiments. Il conjugue ainsi habitat vertueux, innovation et mixité. L'aménagement du quartier répond à des exigences fortes de maîtrise énergétique, de préservation de l'environnement, de biodiversité et de bien-être en ville.Une dynamique source d'innovation au bénéfice du bien-être de tous les usagers, pour une ville plus résiliente et plus désirable pour les générations futures.
Nous contacter pour tout élément complémentaire : visite du bien, photos, détails, plans, prestations et autres.
EUPORIA IMMOBILIER présent sur Paris & Lyon Carte professionnelle CPI 6901 2021 000 000 166 CCI Lyon Métropole Saint-Étienne Roanne. RCS Lyon 903 566 099.
Honoraires à la charge du vendeur. Dans une copropriété de 60 lots. Aucune procédure n'est en cours. Non soumis au DPE. Les informations sur les risques auxquels ce bien est exposé sont disponibles sur le site Géorisques : georisques.gouv.fr.
70 m²
7 000 €
13 m²
31 m²
3
2
1
1 (séparé)
6 sur 16
Sud
Ouest
1 (13 m²)
Oui
Oui
Oui
Oui
Oui
Oui (60 lots)
Contact EUPORIA
Contacter gratuitement à l'aide du formulaire ci-dessous.