Honoraires à la charge de l'acquéreur (Prix hors honoraires : 115000 euros).
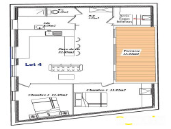
A proximité des commerces et des transports, au centre ville d'Orchies, appartement en dernier étage à rénover dans une petite copropriété de 5 lots. Il sera agrémenté d'une terrasse privative Il pourra être aménagé pour être composé d'une pièce à vivre de 33m², de deux chambres, d'une salle d'eau et d'un WC séparé. Place de stationnement en option.
L'appartement sera livré : toitures, façades et parties communes rénovées.
Idéal déficit foncier/investisseur.
Le bien peut être acquis avec un programme de travaux pour une livraison clé en mains. Prix FAI 123 050 - prix hors d'agence 115 000
Honoraires inclus de 7% TTC à la charge de l'acquéreur. Prix hors honoraires 115 000 . Dans une copropriété de 11 lots. Aucune procédure n'est en cours. Non soumis au DPE. Les informations sur les risques auxquels ce bien est exposé sont disponibles sur le site Géorisques : georisques.gouv.fr.
Votre conseiller Agility Immobilier : Agent immobilier - Gaelle DUHET Carte T CPI 5904 2021 000 000 001 RCP Groupama
61.53 m²
2 000 €
33 m²
3
2
1
1
1 (séparé)
2 sur 2
7 %
1960
1
1
Oui (11 lots)
Contact Agility Immobilier
Contacter gratuitement à l'aide du formulaire ci-dessous.