TALENCE - ENTRE VILLE ET CAMPUS : T3 LUMINEUX AVEC BALCON ET 2 PARKINGS
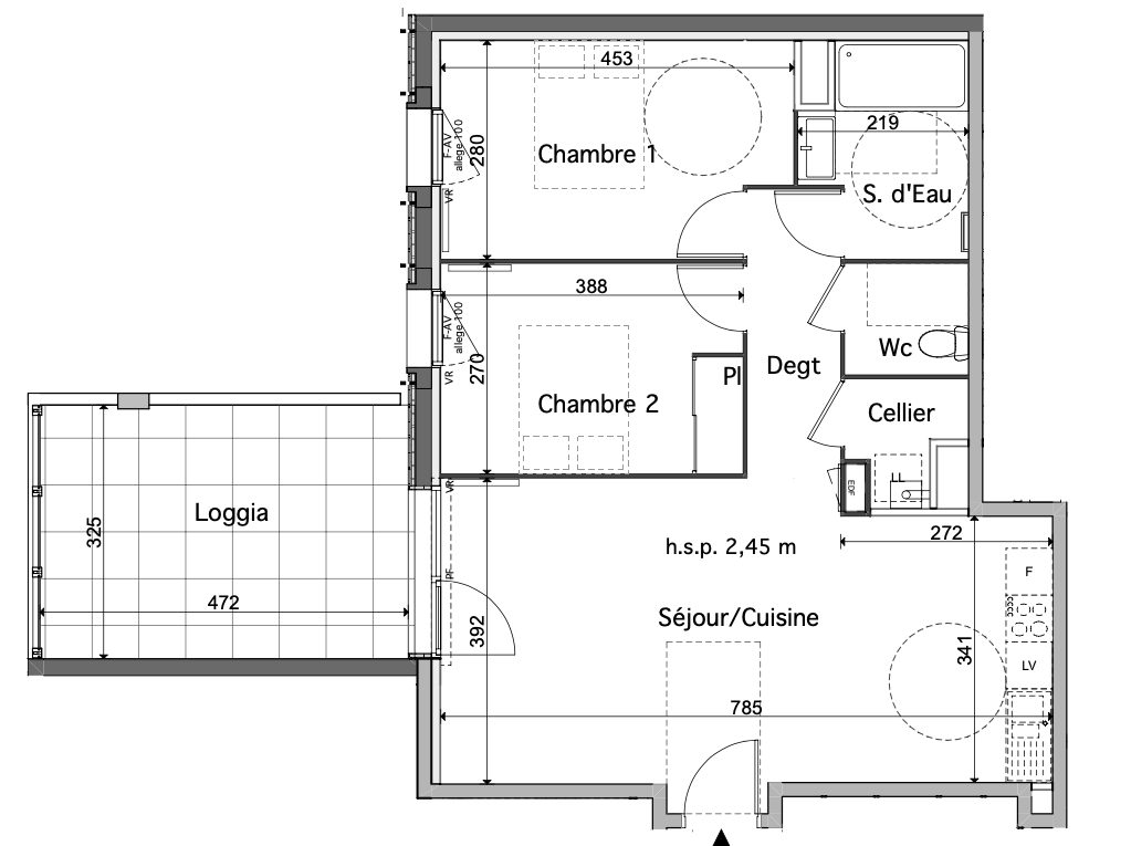
Idéalement situé entre le centre-ville de Talence et le quartier universitaire, cet appartement T3 vous séduira par son emplacement stratégique, au coeur d'un secteur vivant, bien desservi par les transports (tram, bus) et proche de toutes les commodités (commerces, écoles, facultés, parcs).
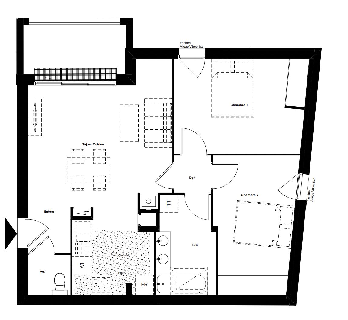
Dès l'entrée, vous découvrez un hall avec placard intégré et toilettes séparées, menant à une belle pièce de vie lumineuse, prolongée par un balcon agréable, idéal pour vos moments de détente en extérieur. L'appartement dispose de deux chambres confortables ainsi qu'une salle de bain fonctionnelle, offrant un agencement optimisé et pratique au quotidien.
Enfin, deux places de stationnement privatives complètent ce bien, un vrai plus dans ce secteur prisé.
Que vous soyez jeune actif, étudiant en colocation ou investisseur, ce bien offre un excellent compromis entre vie urbaine, tranquillité et accessibilité.
TALENCE - ENTRE VILLE ET CAMPUS : T3 LUMINEUX AVEC BALCON ET 2 PARKINGS
Honoraires à la charge du vendeur. Dans une copropriété de 13 lots. Aucune procédure n'est en cours. DPE en cours. Les informations sur les risques auxquels ce bien est exposé sont disponibles sur le site Géorisques : georisques.gouv.fr.