Appartement T3 avec vue et stationnement proche commodité
Ampuis 69420
0
Honoraires à la charge du vendeur.
Sous offre Découvrez l'Appartement de Vos Rêves à Ampuis (69420)
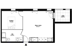
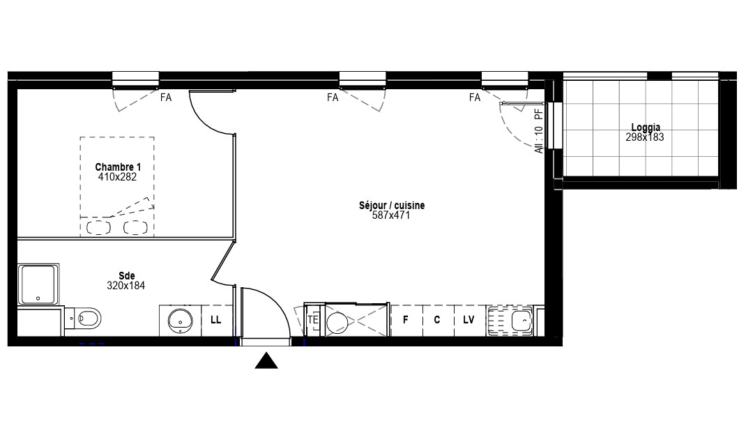
Plongez dans un univers de confort et de modernité avec cet appartement T3 de 60 m² à l'entrée d'Ampuis. Appartement de 2024 aux normes RE 2020, éligible au prêt à taux zéro, cet appartement neuf vous offre un cadre de vie exceptionnel, alliant élégance et fonctionnalité. Imaginez-vous dans un espace lumineux et bien agencé, où chaque détail a été pensé pour votre bien-être.
L'appartement se compose de trois pièces, avec cuisine ouverte sur la pièce de vie, deux chambres confortables, une salle d'eau moderne, un espace dressing et un WC séparé. Les ouvertures en PVC/Aluminium doubles vitrages garantissent une isolation optimale, vous assurant une tranquillité absolue. Les parties communes, tout comme l'intérieur, sont neuves offrant un environnement impeccable.
Le chauffage individuel au sol par pompe à chaleur, vous permet de réguler la température selon vos préférences, pour un confort personnalisé. Profitez d'une connexion Internet haut débit et de la fibre optique, pour une expérience digitale fluide et sans interruption.
Espace vert et place de parking privative!
Ampuis, avec ses paysages pittoresques et son ambiance chaleureuse, est le lieu idéal pour une vie paisible. À seulement 5 minutes à pied, vous trouverez une épicerie pour vos courses quotidiennes. En voiture, à 5 minutes, vous accéderez à plusieurs écoles, de la maternelle au collège, ainsi qu'à des médecins généralistes. Pour vos moments de détente, 16 restaurants vous attendent à 5 minutes en voiture, et 3 parcs et jardins à 10 minutes. Les commodités sont nombreuses et accessibles en un rien de temps.
Ne manquez pas cette opportunité unique de vivre dans un appartement alliant modernité et confort.
Contactez-nous dès aujourd'hui pour organiser une visite sur place et découvrir votre futur chez vous.
Honoraires à la charge du vendeur. Dans une copropriété de 29 lots. Aucune procédure n'est en cours. Classe énergie A, Classe climat A Montant estimé des dépenses annuelles d'énergie pour un usage standard : entre 610.00 et 880.00 sur les années 2021, 2022 et 2023 (abonnements compris). Les informations sur les risques auxquels ce bien est exposé sont disponibles sur le site Géorisques : georisques.gouv.fr.